
|
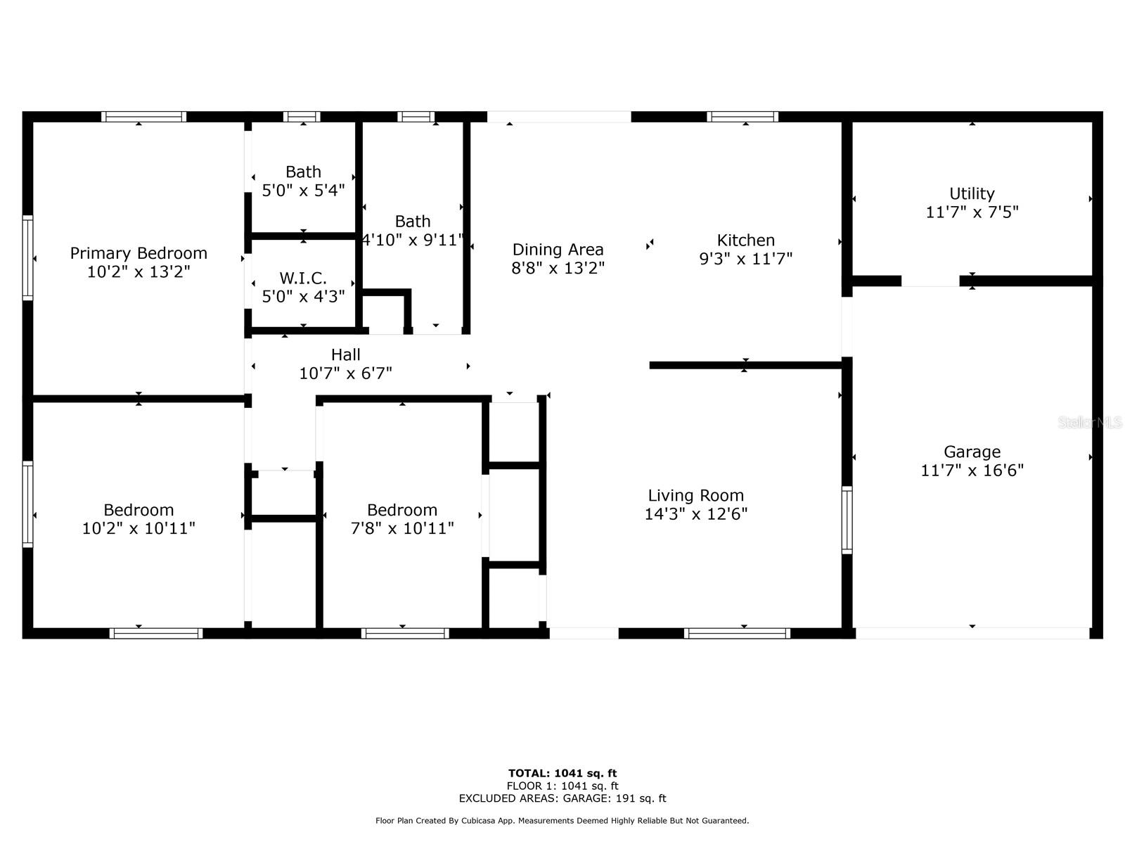
Bedrooms
3
|
Bathrooms
2
|
Living Area
1,118 Sqft
|
Lot Size
11,761 Sqft
|
| Property Features | Property Features | |||
|---|---|---|---|---|
| MLS ID: | MFROM700676 | Year Built: | 1972 | |
| Appliances: | Dishwasher, Dryer, Range, Refrigerator | Construction Materials: | Block, Concrete, Stucco | |
| Cooling: | Central Air | Country: | US | |
| County Or Parish: | Marion | Direction Faces: | Southeast | |
| Exterior Features: | Lighting, Sliding Doors | Flooring: | Luxury Vinyl | |
| Foundation Details: | Slab | Heating: | Central | |
| Laundry Features: | In Garage | Levels: | One | |
| Listing Agreement: | Exclusive Right To Sell | Listing Terms: | Cash, Conventional, FHA, VA Loan | |
| Occupant Type: | Vacant | Property Sub Type: | Single Family Residence | |
| Property Type: | Residential | Road Surface Type: | Paved | |
| Roof: | Shingle | Sewer: | Public Sewer | |
| Showing Requirements: | See Remarks, ShowingTime | Special Listing Conditions: | None | |
| Standard Status: | Active | State Or Province: | FL | |
| Utilities: | Cable Available, Cable Connected | Water Source: | Public | |
| Rooms | Rooms | |||
|---|---|---|---|---|
| Kitchen: | Living Room: | |||
| Primary Bedroom: | ||||