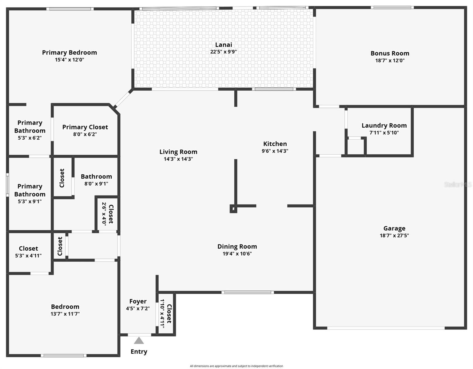
Flexible Floor Plan. Major Updates. Unbeatable 55+ Lifestyle. Welcome to Marion Landing, one of Ocala’s most beloved 55+ communities — and to a home that delivers comfort, flexibility, and exceptional value from the moment you walk through the door. This light-filled 2-bedroom, 2-bath residence offers more usable space than many 3-bedroom homes in the neighborhood. Just off the kitchen is a bonus flex room with a nearby bath that can easily be converted into a third bedroom with the simple addition of a closet. To make it even easier, the seller is including a $2,000 credit at closing toward the conversion or buyer closing costs, giving the next owner a head start. All the big-ticket updates are already done: Brand-new roof (2024) Fresh exterior paint (2024) Newer HVAC (2020) Inside, the split floor plan flows beautifully with vaulted ceilings, tray ceiling details, tile in the kitchen and baths, and soft carpet in the living areas for a warm, inviting feel. The kitchen overlooks the spacious living room, creating a natural gathering space whether you’re entertaining or enjoying a quiet morning at home. The primary suite includes a walk-in closet and private bath, offering the perfect retreat at the end of the day. A highlight of the home is the enclosed 220 sq. ft. Florida room — a bright, relaxing spot to sip your coffee, read, or simply enjoy the peaceful backyard. Additional features include an oversized 2-car garage, irrigation system, and generous storage that make everyday living even more comfortable. Beyond the front door, Marion Landing offers a lifestyle unlike any other. It’s the only 55+ community in the area with its own private bowling alley, plus: Clubhouse with planned activities and events Pool and spa Tennis and shuffleboard courts Walking paths and green spaces A friendly, active community atmosphere With low monthly HOA fees of $186, a prime SR-200 location near shopping, dining, medical care, and I-75, this home combines location, updates, and lifestyle into one incredible package. Offered at $255,900, this home is move-in ready, flexible, and priced to sell. Schedule your private showing today and discover why Marion Landing remains one of Ocala’s most popular 55+ communities.
Property Details
Property Features Property Features
MLS ID: MFROM704824 Year Built: 2002
Appliances: Dishwasher, Disposal, Electric Water Heater, Microwave, Range, Refrigerator Association Amenities: Clubhouse, Fitness Center, Pool, Shuffleboard Court, Spa/Hot Tub, Tennis Court(s)
Association Fee Includes: Pool, Sewer, Trash, Water Construction Materials: Block, Stucco
Cooling: Central Air Country: US
County Or Parish: Marion Direction Faces: North
Exterior Features: Lighting, Rain Gutters Flooring: Carpet, Tile
Foundation Details: Slab Heating: Central, Electric
Laundry Features: Laundry Room Levels: One
Listing Agreement: Exclusive Right To Sell Listing Terms: Cash, Conventional, FHA, VA Loan
Occupant Type: Owner Pets Allowed: Cats OK, Dogs OK
Possession: Close Of Escrow Property Sub Type: Single Family Residence
Property Type: Residential Road Surface Type: Asphalt
Roof: Shingle Sewer: Private Sewer
Showing Requirements: Supra Lock Box, 24 Hour Notice, Appointment Only Special Listing Conditions: None
Standard Status: Active State Or Province: FL
Utilities: Electricity Connected Water Source: Private
Window Features: Skylight(s)
Rooms Rooms
Living Room: 14x25 ft Kitchen: 10x15 ft
Primary Bedroom: 12x15 ft
We love to hear from you