
|
Bedrooms
3
|
Bathrooms
3
|
Living Area
1,861 Sqft
|
Lot Size
51,327 Sqft
|
| Property Features | Property Features | |||
|---|---|---|---|---|
| MLS ID: | MFROM707818 | Year Built: | 1989 | |
| Appliances: | Dishwasher, Dryer, Electric Water Heater, Microwave, Range Hood, Refrigerator, Washer | Architectural Style: | Florida | |
| Construction Materials: | Block, Stucco | Cooling: | Central Air | |
| Country: | US | County Or Parish: | Polk | |
| Direction Faces: | West | Exterior Features: | Garden | |
| Fencing: | Board, Cross Fenced | Flooring: | Laminate, Tile | |
| Foundation Details: | Slab | Furnished: | Negotiable | |
| Heating: | Electric | Laundry Features: | Electric Dryer Hookup, Inside, Laundry Room, Washer Hookup | |
| Levels: | One | Listing Agreement: | Exclusive Agency | |
| Listing Terms: | Cash, Conventional, USDA Loan, VA Loan | Occupant Type: | Owner | |
| Other Structures: | Barn(s), Shed(s) | Parking Features: | Driveway, Open | |
| Patio And Porch Features: | Covered, Rear Porch, Screened | Possession: | Close Of Escrow | |
| Property Sub Type: | Single Family Residence | Property Type: | Residential | |
| Road Responsibility: | Public Maintained Road | Road Surface Type: | Asphalt | |
| Roof: | Metal | Security Features: | Security System Owned | |
| Sewer: | Septic Tank | Showing Requirements: | Call Listing Agent, ShowingTime | |
| Special Listing Conditions: | None | Standard Status: | Active | |
| State Or Province: | FL | Utilities: | Electricity Connected, Sprinkler Well | |
| Vegetation: | Mature Landscaping, Oak Trees, Trees/Landscaped | View: | Water | |
| Water Source: | Private, Well | Waterfront Features: | Lake Front | |
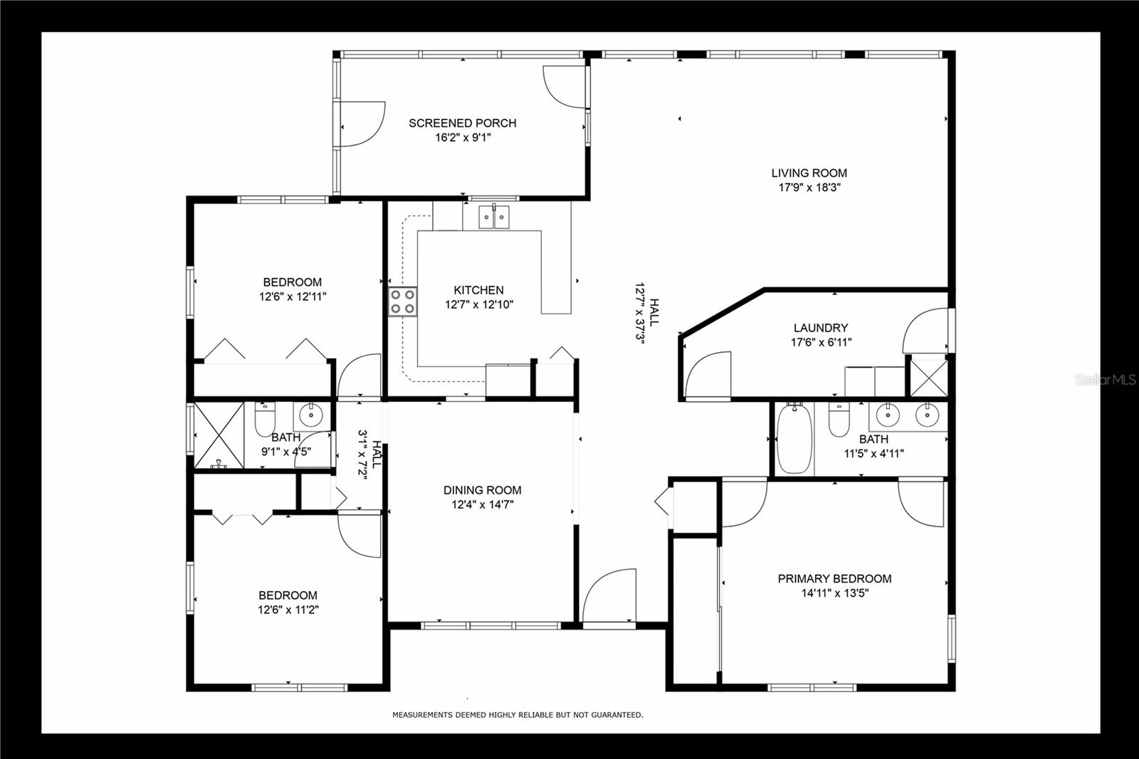
| Rooms | Rooms | |||
|---|---|---|---|---|
| Living Room: | 17x18 ft | Dining Room: | 12x14 ft | |
| Kitchen: | 12x12 ft | Primary Bedroom: | 14x13 ft | |
| Primary Bathroom: | 11x4 ft | Bedroom 2: | 12x11 ft | |
| Bathroom 2: | 9x4 ft | Bedroom 3: | 12x12 ft | |
| Laundry: | 17x6 ft | Balcony/Porch/Lanai: | 16x9 ft | |
| Workshop: | 12x7 ft | |||