
|
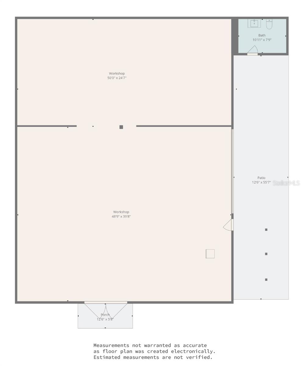
Living Area
1,250 Sqft
|
Lot Size
138,956 Sqft
|
| Property Features | Property Features | |||
|---|---|---|---|---|
| MLS ID: | MFROM722611 | Year Built: | 2021 | |
| Building Features: | Bathrooms, Extra Storage, High Bays, Overhead Doors, Seating, Truck Doors | Construction Materials: | Metal Siding | |
| Cooling: | Central Air, Wall/Window Unit(s) | Country: | US | |
| County Or Parish: | Levy | Direction Faces: | Southwest | |
| Electric: | Three Phase | Flooring: | Concrete, Luxury Vinyl | |
| Foundation Details: | Slab | Heating: | Central, Electric | |
| Listing Agreement: | Exclusive Right To Sell | Listing Terms: | Cash, Commercial Financing, Lease Option, Lease Purchase, Owner Financing | |
| Lot Features: | Oversized Lot, Paved | Other Equipment: | Overhead Crane | |
| Possession: | Close Of Escrow | Property Sub Type: | Warehouse | |
| Property Type: | Commercial Sale | Road Frontage Type: | Divided Highway | |
| Road Responsibility: | Public Maintained Road | Road Surface Type: | Paved | |
| Roof: | Metal | Sewer: | Septic Tank | |
| Showing Requirements: | Appointment Only | Special Listing Conditions: | None | |
| Standard Status: | Active | State Or Province: | FL | |
| Utilities: | Phone Available | Water Source: | Well | |