
|
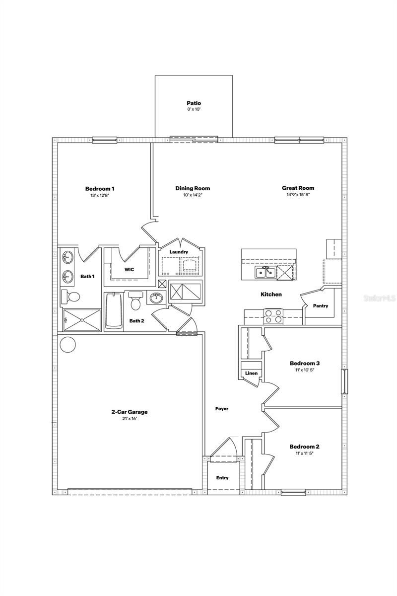
Bedrooms
3
|
Bathrooms
2
|
Living Area
1,328 Sqft
|
Lot Size
11,160 Sqft
|
| Property Features | Property Features | |||
|---|---|---|---|---|
| MLS ID: | MFROM723708 | Year Built: | 2026 | |
| Appliances: | Dishwasher, Microwave, Range | Construction Materials: | Block | |
| Cooling: | Central Air | Country: | US | |
| County Or Parish: | Marion | Direction Faces: | Northeast | |
| Flooring: | Carpet, Luxury Vinyl | Foundation Details: | Slab | |
| Furnished: | Unfurnished | Heating: | Electric, Heat Pump | |
| Laundry Features: | Laundry Room | Levels: | One | |
| Listing Agreement: | Exclusive Right To Sell | Occupant Type: | Vacant | |
| Other Equipment: | Irrigation Equipment | Pets Allowed: | Yes | |
| Property Condition: | Under Construction | Property Sub Type: | Single Family Residence | |
| Property Type: | Residential | Road Surface Type: | Paved | |
| Roof: | Shingle | Sewer: | Public Sewer | |
| Showing Requirements: | Contact Call Center | Special Listing Conditions: | None | |
| Standard Status: | Active | State Or Province: | FL | |
| Utilities: | Other | Water Source: | Public | |
| Rooms | Rooms | |||
|---|---|---|---|---|
| Balcony/Porch/Lanai: | 8x10 ft | Great Room: | 14x15 ft | |
| Kitchen: | 17x10 ft | Primary Bedroom: | 13x12 ft | |