
|
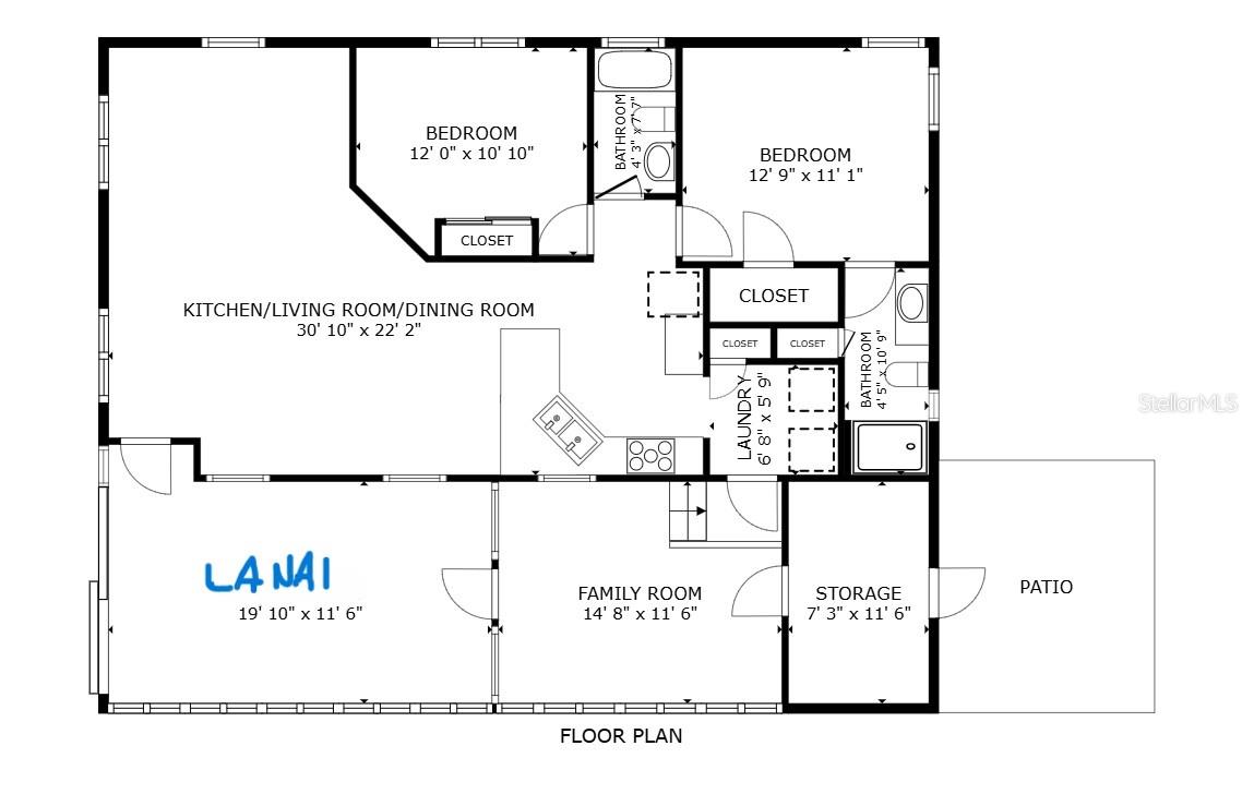
Bedrooms
2
|
Bathrooms
2
|
Living Area
1,192 Sqft
|
Lot Size
5,022 Sqft
|
| Property Features | Property Features | |||
|---|---|---|---|---|
| MLS ID: | MFRP4938058 | Year Built: | 1987 | |
| Appliances: | Dishwasher, Dryer, Electric Water Heater, Microwave, Range, Range Hood, Refrigerator, Washer | Architectural Style: | Traditional | |
| Association Amenities: | Clubhouse, Fitness Center, Pool, Shuffleboard Court | Body Type: | Double Wide | |
| Community Features: | Association Recreation - Owned, Buyer Approval Required, Clubhouse, Deed Restrictions, Dog Park, Fitness Center, Golf Carts OK, Pool | Construction Materials: | Metal Siding | |
| Cooling: | Central Air | Country: | US | |
| County Or Parish: | Polk | Direction Faces: | East | |
| Exterior Features: | Permeable Paving, Private Mailbox, Storage | Fireplace Features: | Electric, Living Room | |
| Flooring: | Ceramic Tile, Luxury Vinyl | Foundation Details: | Crawlspace | |
| Furnished: | Turnkey | Heating: | Central, Electric, Heat Pump | |
| Laundry Features: | Electric Dryer Hookup, Inside, Laundry Room, Washer Hookup | Levels: | One | |
| Listing Agreement: | Exclusive Right To Sell | Listing Terms: | Cash, Conventional, FHA, VA Loan | |
| Lot Features: | Cleared, In County, Level, Paved | Occupant Type: | Vacant | |
| Other Equipment: | Permeable Paving | Parking Features: | Driveway | |
| Patio And Porch Features: | Patio | Pets Allowed: | Cats OK, Dogs OK, Number Limit, Size Limit, Yes | |
| Pool Features: | Gunite, In Ground, Tile | Possession: | Close Of Escrow | |
| Property Sub Type: | Manufactured Home | Property Type: | Residential | |
| Road Responsibility: | Public Maintained Road | Road Surface Type: | Asphalt | |
| Roof: | Membrane | Sewer: | Public Sewer | |
| Showing Requirements: | Supra Lock Box, ShowingTime | Special Listing Conditions: | None | |
| Standard Status: | Active | State Or Province: | FL | |
| Utilities: | BB/HS Internet Available, Cable Available, Electricity Connected, Phone Available, Public, Sewer Connected, Water Connected | Water Source: | Public | |
| Window Features: | Blinds, Drapes | |||
| Rooms | Rooms | |||
|---|---|---|---|---|
| Living Room: | 15x13 ft | Dining Room: | 13x13 ft | |
| Kitchen: | 11x11 ft | Primary Bedroom: | 13x11 ft | |
| Bedroom 2: | 9x12 ft | Florida Room: | 12x15 ft | |
| Balcony/Porch/Lanai: | 12x20 ft | Balcony/Porch/Lanai: | 12x13 ft | |
| Workshop: | 11x7.4 ft | Laundry: | 7.4x11 ft | |