One or more photo(s) has been virtually staged. LOOKING FOR SPACE INSIDE AND OUTSIDE? This 3BR/2BA doublewide mfg home has a huge living room in addition to a separate dining room , numerous storage closets, an inside laundry room PLUS a 47'x11' enclosed porch PLUS an over 500 sq ft block workshop/storage building with electric. There is brand new LVP just installed in the living room, dining room and guest bath in addition to a new HVAC unit and entire new septic system in 2025! There is a carport for vehicle cover, driveway parking and an access ramp too. Located within five minutes to the current and also the coming soon Mariana Publix, the Lake Mariana boat ramp and to the renowned Auburndale downtown and city park. Auburndale has the Lake Myrtle Sports Complex, the new Lake Ariana Park complex on the shores of Lake Ariana with lake access for boating and fishing and community events. With easy access to major roads for travel, dining, medical and shopping this is quite a value for an Auburndale location!
Property Details
Property Features Property Features
MLS ID: MFRP4938147 Year Built: 1978
Appliances: Built-In Oven, Cooktop, Dishwasher, Electric Water Heater, Microwave, Refrigerator Body Type: Double Wide
Construction Materials: Vinyl Siding Cooling: Central Air
Country: US County Or Parish: Polk
Direction Faces: West Exterior Features: Private Mailbox, Private Yard, Storage
Fencing: Fenced Flooring: Carpet, Luxury Vinyl
Foundation Details: Crawlspace Furnished: Unfurnished
Heating: Central, Electric Laundry Features: Inside, Laundry Room
Levels: One Listing Agreement: Exclusive Right To Sell
Listing Terms: Cash, Conventional Occupant Type: Vacant
Other Equipment: Private Yard Other Structures: Storage, Workshop
Possession: Close Of Escrow Property Sub Type: Manufactured Home
Property Type: Residential Road Surface Type: Paved
Roof: Membrane, Shingle Sewer: Septic Tank
Showing Requirements: ShowingTime Special Listing Conditions: None
Standard Status: Active State Or Province: FL
Utilities: Electricity Connected, Water Connected Vegetation: Oak Trees
Water Source: Public
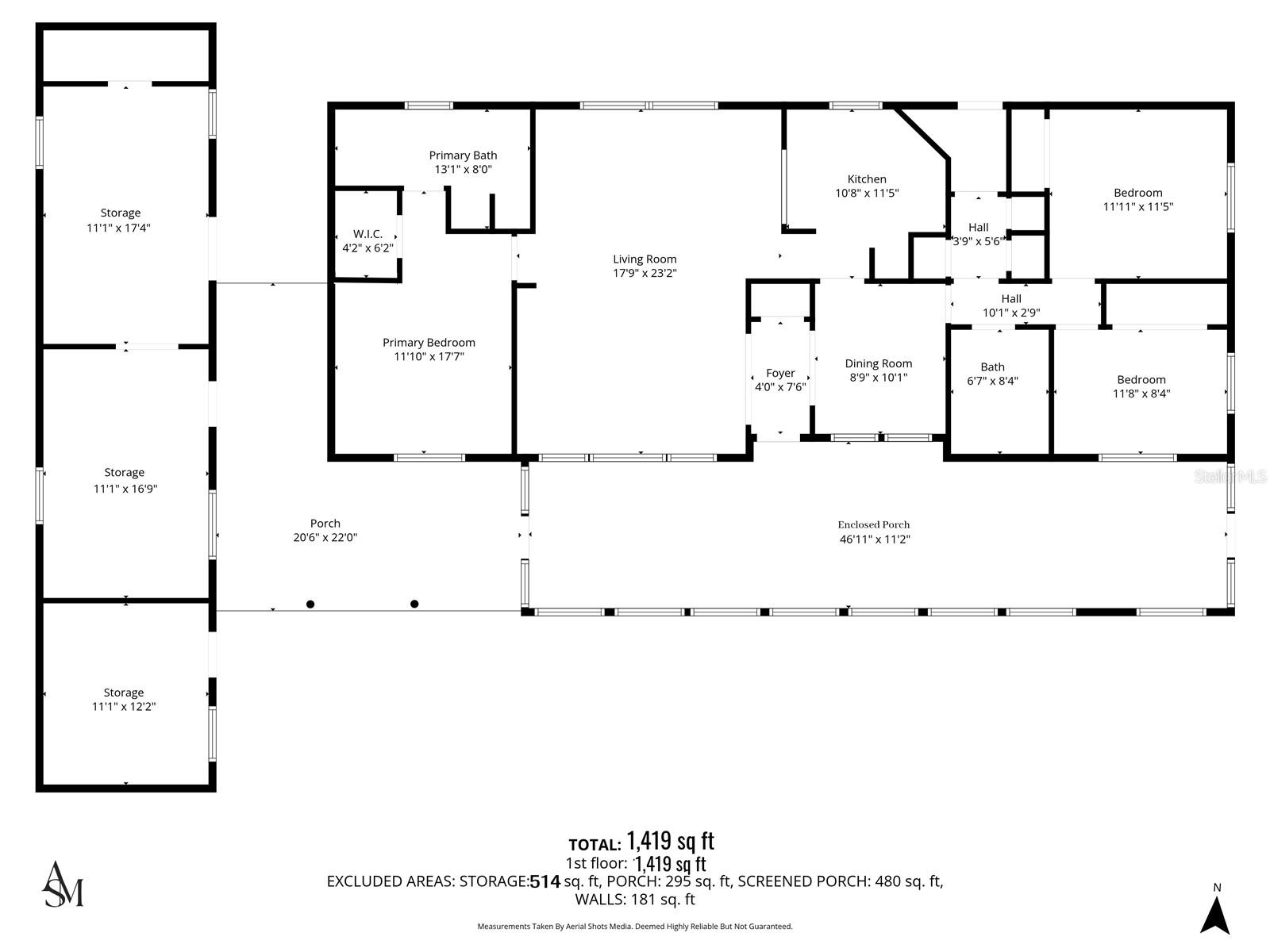
Rooms Rooms
Foyer: 4x7.6 ft Dining Room: 8.9x10.1 ft
Living Room: 17.9x23.2 ft Kitchen: 10.8x11.5 ft
Primary Bedroom: 11.1x17.7 ft Primary Bathroom: 13.1x8 ft
Bedroom 2: 11.11x11.5 ft Bedroom 3: 11.8x8.4 ft
Bathroom 2: 8.9x10.1 ft Balcony/Porch/Lanai: 46.11x11.2 ft
We love to hear from you