
|
Bedrooms
3
|
Bathrooms
2
|
Living Area
1,493 Sqft
|
Lot Size
10,115 Sqft
|
| Property Features | Property Features | |||
|---|---|---|---|---|
| MLS ID: | MFRP4938496 | Year Built: | 1959 | |
| Appliances: | Dishwasher, Disposal, Dryer, Electric Water Heater, Microwave, Range, Refrigerator, Washer | Architectural Style: | Ranch | |
| Community Features: | Sidewalks | Construction Materials: | Block, Concrete, Stucco | |
| Cooling: | Central Air | Country: | US | |
| County Or Parish: | Polk | Direction Faces: | South | |
| Exterior Features: | Sidewalk | Flooring: | Ceramic Tile, Terrazzo | |
| Foundation Details: | Slab | Furnished: | Unfurnished | |
| Heating: | Central, Electric | Laundry Features: | Electric Dryer Hookup, Inside, Laundry Room, Washer Hookup | |
| Levels: | One | Listing Agreement: | Exclusive Right To Sell | |
| Listing Terms: | Cash, Conventional, FHA, VA Loan | Lot Features: | Cleared, City Limits, Level, Paved | |
| Occupant Type: | Owner | Other Structures: | Shed(s) | |
| Patio And Porch Features: | Front Porch, Screened | Pets Allowed: | Yes | |
| Possession: | Close Of Escrow | Property Sub Type: | Single Family Residence | |
| Property Type: | Residential | Road Surface Type: | Asphalt, Paved | |
| Roof: | Shingle | Sewer: | Public Sewer | |
| Showing Requirements: | ShowingTime | Special Listing Conditions: | None | |
| Standard Status: | Active | State Or Province: | FL | |
| Utilities: | Cable Available, Electricity Connected, Sewer Connected, Water Connected | Vegetation: | Oak Trees | |
| Water Source: | Public | |||
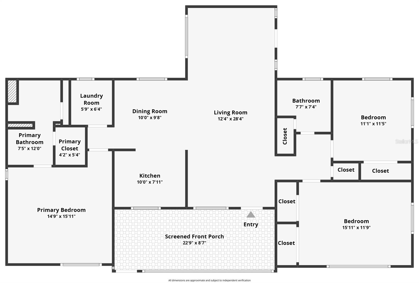
| Rooms | Rooms | |||
|---|---|---|---|---|
| Living Room: | 12.4x28.5 ft | Dining Room: | 9.8x10 ft | |
| Kitchen: | 7.11x10 ft | Primary Bedroom: | 14.9x15.11 ft | |
| Primary Bathroom: | 7.5x12 ft | Bedroom 2: | 11.9x15.11 ft | |
| Bathroom 2: | 7.4x7.7 ft | Bedroom 3: | 11.1x11.5 ft | |
| Laundry: | 5.9x6.4 ft | |||