
|
Bedrooms
2
|
Bathrooms
2
|
Living Area
912 Sqft
|
Lot Size
4,609 Sqft
|
| Property Features | Property Features | |||
|---|---|---|---|---|
| MLS ID: | MFRS5145451 | Year Built: | 1995 | |
| Appliances: | Dishwasher, Dryer, Microwave, Range, Refrigerator, Washer | Association Amenities: | Cable TV, Clubhouse, Pool, Recreation Facilities, Shuffleboard Court | |
| Association Fee Includes: | Cable TV, Pool, Escrow Reserves Fund, Internet, Private Road, Recreational Facilities, Sewer, Water | Body Type: | Double Wide | |
| Community Features: | Buyer Approval Required, Clubhouse, Deed Restrictions, Golf Carts OK | Construction Materials: | Vinyl Siding | |
| Cooling: | Central Air | Country: | US | |
| County Or Parish: | Polk | Direction Faces: | Northeast | |
| Exterior Features: | Lighting, Sliding Doors, Storage | Flooring: | Carpet, Luxury Vinyl | |
| Foundation Details: | Crawlspace | Furnished: | Furnished | |
| Heating: | Heat Recovery Unit | Laundry Features: | Inside, Laundry Closet | |
| Levels: | One | Listing Agreement: | Exclusive Right To Sell | |
| Listing Terms: | Cash, Conventional, VA Loan | Lot Features: | In County, Paved | |
| Occupant Type: | Owner | Other Equipment: | Irrigation Equipment | |
| Parking Features: | Driveway | Patio And Porch Features: | Covered, Front Porch, Screened | |
| Pets Allowed: | Number Limit, Size Limit, Yes | Possession: | Close Of Escrow | |
| Property Condition: | Completed | Property Sub Type: | Manufactured Home | |
| Property Type: | Residential | Road Surface Type: | Asphalt, Paved | |
| Roof: | Shingle | Security Features: | Smoke Detector(s) | |
| Sewer: | Private Sewer | Showing Requirements: | Appointment Only, Combination Lock Box, See Remarks, ShowingTime | |
| Special Listing Conditions: | None | Standard Status: | Active | |
| State Or Province: | FL | Utilities: | BB/HS Internet Available, Cable Available, Electricity Connected, Sewer Connected, Water Connected | |
| Vegetation: | Mature Landscaping | Water Source: | Private | |
| Window Features: | Window Treatments | |||
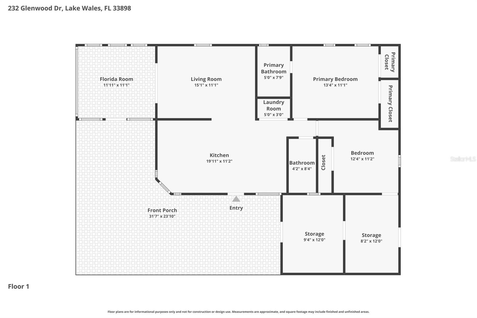
| Rooms | Rooms | |||
|---|---|---|---|---|
| Living Room: | 15x11 ft | Kitchen: | 19x11 ft | |
| Florida Room: | 11x11 ft | Primary Bedroom: | 13x11 ft | |
| Bedroom 2: | 12x11 ft | Laundry: | 5x7 ft | |