
|
Bedrooms
5
|
Bathrooms
5
|
Living Area
3,653 Sqft
|
Lot Size
12,789 Sqft
|
| Property Features | Property Features | |||
|---|---|---|---|---|
| MLS ID: | MFRS5146603 | Year Built: | 2008 | |
| Appliances: | Dishwasher, Disposal, Dryer, Electric Water Heater, Microwave, Range, Refrigerator, Washer | Architectural Style: | Traditional | |
| Association Amenities: | Gated | Association Fee Includes: | Guard - 24 Hour | |
| Community Features: | Clubhouse, Gated Community - Guard | Construction Materials: | Block, Stucco, Frame | |
| Cooling: | Central Air | Country: | US | |
| County Or Parish: | Polk | Direction Faces: | North | |
| Exterior Features: | Balcony, Sidewalk | Flooring: | Carpet, Ceramic Tile | |
| Foundation Details: | Block | Furnished: | Furnished | |
| Heating: | Central, Electric | Laundry Features: | Laundry Room | |
| Levels: | Three Or More | Listing Agreement: | Exclusive Right To Sell | |
| Listing Terms: | Cash, Conventional, VA Loan | Lot Features: | Landscaped, Sidewalk, Paved | |
| Occupant Type: | Vacant | Parking Features: | Ground Level | |
| Patio And Porch Features: | Rear Porch, Screened | Pets Allowed: | Yes | |
| Pool Features: | Gunite, In Ground, Screen Enclosure | Possession: | Close Of Escrow | |
| Property Condition: | Completed | Property Sub Type: | Single Family Residence | |
| Property Type: | Residential | Road Surface Type: | Asphalt, Paved | |
| Roof: | Tile | Security Features: | Smoke Detector(s) | |
| Sewer: | Public Sewer | Showing Requirements: | Appointment Only, ShowingTime | |
| Spa Features: | In Ground | Special Listing Conditions: | None | |
| Standard Status: | Active | State Or Province: | FL | |
| Utilities: | Cable Connected, Electricity Connected, Sewer Connected, Water Connected | Vegetation: | Mature Landscaping | |
| View: | Pool, Water | Water Source: | Public | |
| Waterfront Features: | Lake Front | Window Features: | Blinds, Window Treatments | |
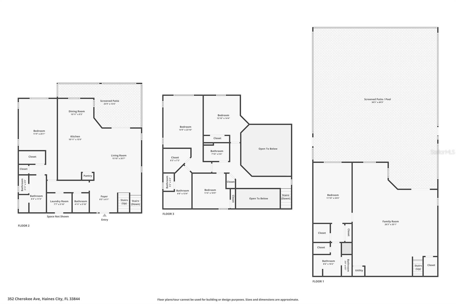
| Rooms | Rooms | |||
|---|---|---|---|---|
| Kitchen: | 10.11x15.5 ft | Dining Room: | 10.11x9.3 ft | |
| Living Room: | 15.1x20.7 ft | Primary Bedroom: | 11.9x25.1 ft | |
| Primary Bathroom: | 8.4x11.5 ft | Primary Bedroom 2: | 11.1x24.6 ft | |
| Bathroom 2: | 8.6x10.2 ft | Game Room: | 26.3x35.1 ft | |
| Bedroom 3: | 11.6x10.9 ft | Bedroom 4: | 14.9x23.1 ft | |
| Bedroom 5: | 13.1x14.4 ft | Bathroom 3: | 8.8x13.4 ft | |
| Bathroom 4: | 7.1x5.6 ft | Laundry: | 7.7x5.1 ft | |