
|
Bedrooms
3
|
Bathrooms
3
|
Living Area
1,802 Sqft
|
Lot Size
3,920 Sqft
|
| Property Features | Property Features | |||
|---|---|---|---|---|
| MLS ID: | MFRS5147463 | Year Built: | 2023 | |
| Appliances: | Cooktop, Dishwasher, Disposal, Dryer, Electric Water Heater, Exhaust Fan, Microwave, Range, Washer | Community Features: | Street Lights | |
| Construction Materials: | Block, Stucco | Cooling: | Central Air | |
| Country: | US | County Or Parish: | Osceola | |
| Direction Faces: | South | Exterior Features: | Balcony, Basketball Court, Courtyard, Dog Run, Playground, Private Entrance, Private Yard, Sidewalk, Sliding Doors, Sprinkler Metered | |
| Flooring: | Carpet, Ceramic Tile, Granite | Foundation Details: | Block, Slab | |
| Furnished: | Unfurnished | Heating: | Central, Electric, Exhaust Fan | |
| Laundry Features: | Inside, Laundry Room | Levels: | Two | |
| Listing Agreement: | Exclusive Right To Sell | Occupant Type: | Vacant | |
| Other Equipment: | Basketball Court, Playground, Private Entrance, Private Yard | Pets Allowed: | Breed Restrictions | |
| Property Sub Type: | Single Family Residence | Property Type: | Residential | |
| Road Surface Type: | Asphalt | Roof: | Shingle | |
| Sewer: | Public Sewer | Showing Requirements: | Sentri Lock Box, Call Listing Agent | |
| Special Listing Conditions: | Short Sale | Standard Status: | Active | |
| State Or Province: | FL | Utilities: | BB/HS Internet Available, Cable Available, Electricity Available, Phone Available, Public, Sprinkler Recycled, Underground Utilities, Water Available | |
| Water Source: | Public | |||
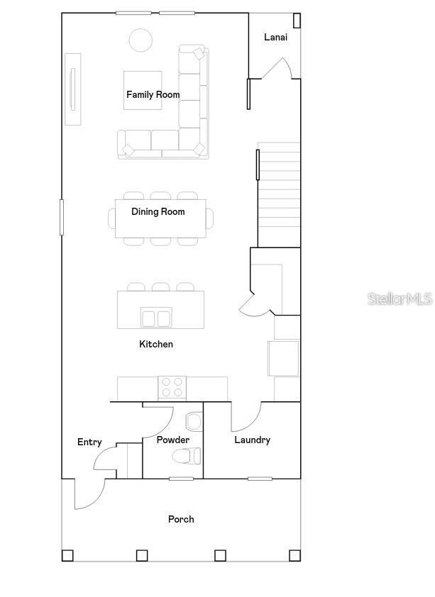
| Rooms | Rooms | |||
|---|---|---|---|---|
| Kitchen: | Dining Room: | |||
| Living Room: | Laundry: | |||
| Primary Bedroom: | Bedroom 2: | |||
| Bedroom 3: | Bathroom 1: | |||
| Bathroom 2: | ||||