
|
Bedrooms
3
|
Bathrooms
3
|
Living Area
1,990 Sqft
|
Lot Size
1,703 Sqft
|
| Property Features | Property Features | |||
|---|---|---|---|---|
| MLS ID: | MFRT3543888 | Year Built: | 2006 | |
| Appliances: | Dishwasher, Disposal, Dryer, Microwave, Range, Refrigerator, Washer | Association Amenities: | Gated, Maintenance | |
| Association Fee Includes: | Pool, Escrow Reserves Fund, Insurance, Maintenance Structure, Maintenance Grounds, Sewer, Trash, Water | Community Features: | Deed Restrictions, Pool | |
| Construction Materials: | Brick, Stucco | Cooling: | Central Air | |
| Country: | US | County Or Parish: | Pinellas | |
| Direction Faces: | North | Exterior Features: | Balcony, French Doors | |
| Flooring: | Carpet, Ceramic Tile, Wood | Foundation Details: | Slab | |
| Heating: | Central | Laundry Features: | Laundry Room | |
| Levels: | Two | Listing Agreement: | Exclusive Right To Sell | |
| Listing Terms: | Cash, Conventional, FHA, VA Loan | Lot Features: | Sidewalk, Private | |
| Occupant Type: | Owner | Patio And Porch Features: | Deck, Patio, Porch, Screened | |
| Pets Allowed: | Yes | Pool Features: | Gunite, In Ground | |
| Property Sub Type: | Townhouse | Property Type: | Residential | |
| Road Surface Type: | Asphalt | Roof: | Tile | |
| Security Features: | Gated Community, Smoke Detector(s) | Sewer: | Public Sewer | |
| Showing Requirements: | Lock Box Electronic-CBS Code Required, See Remarks, ShowingTime | Special Listing Conditions: | None | |
| Standard Status: | Active | State Or Province: | FL | |
| Utilities: | Cable Connected, Public | Vegetation: | Mature Landscaping | |
| Water Source: | Public | Window Features: | Blinds | |
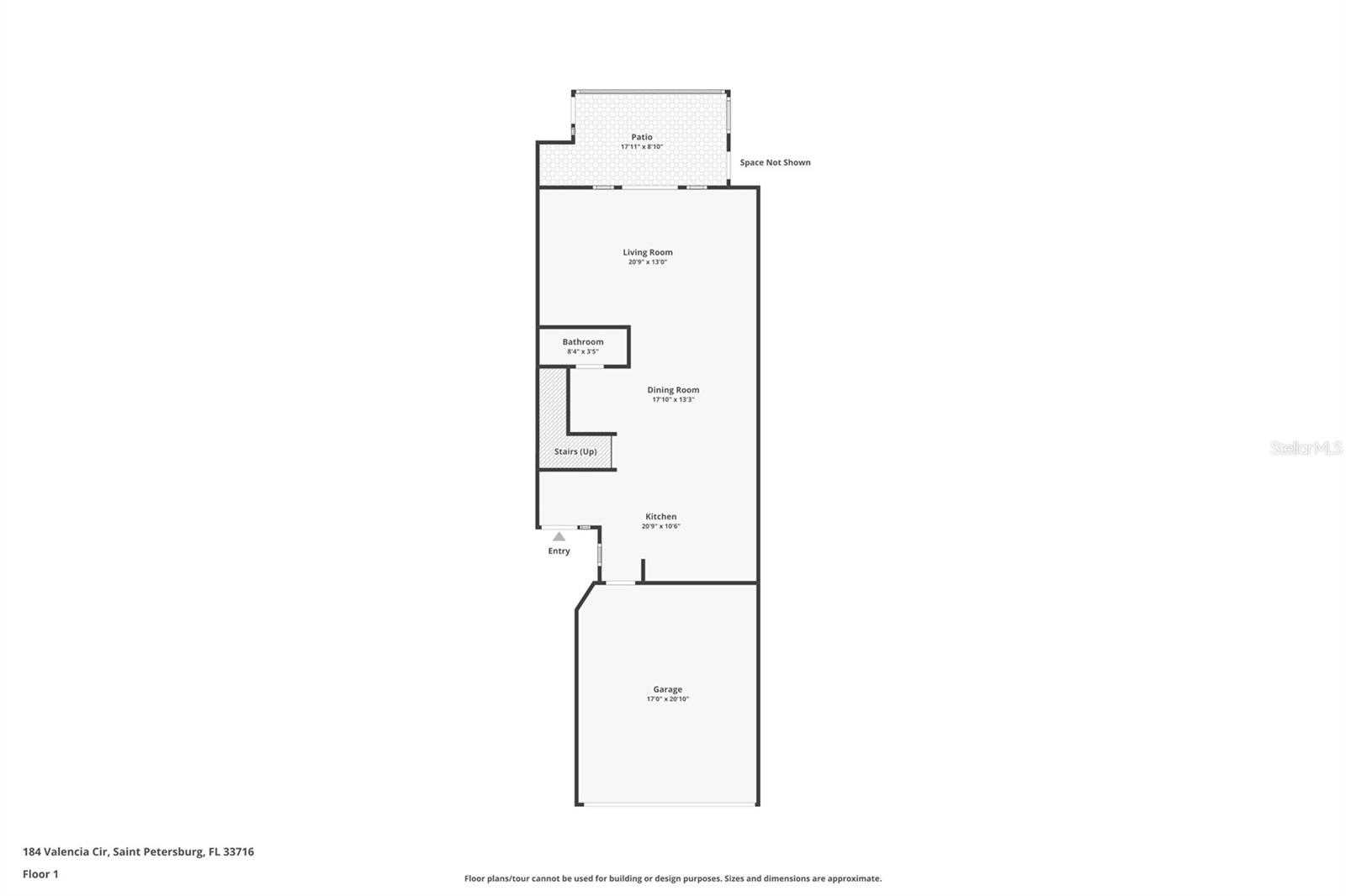
| Rooms | Rooms | |||
|---|---|---|---|---|
| Bedroom 2: | 12x12 ft | Bedroom 3: | 12x11 ft | |
| Kitchen: | 12x13 ft | Living Room: | 15x21 ft | |
| Primary Bathroom: | Primary Bedroom: | 15x13 ft | ||