
|
Bedrooms
2
|
Bathrooms
3
|
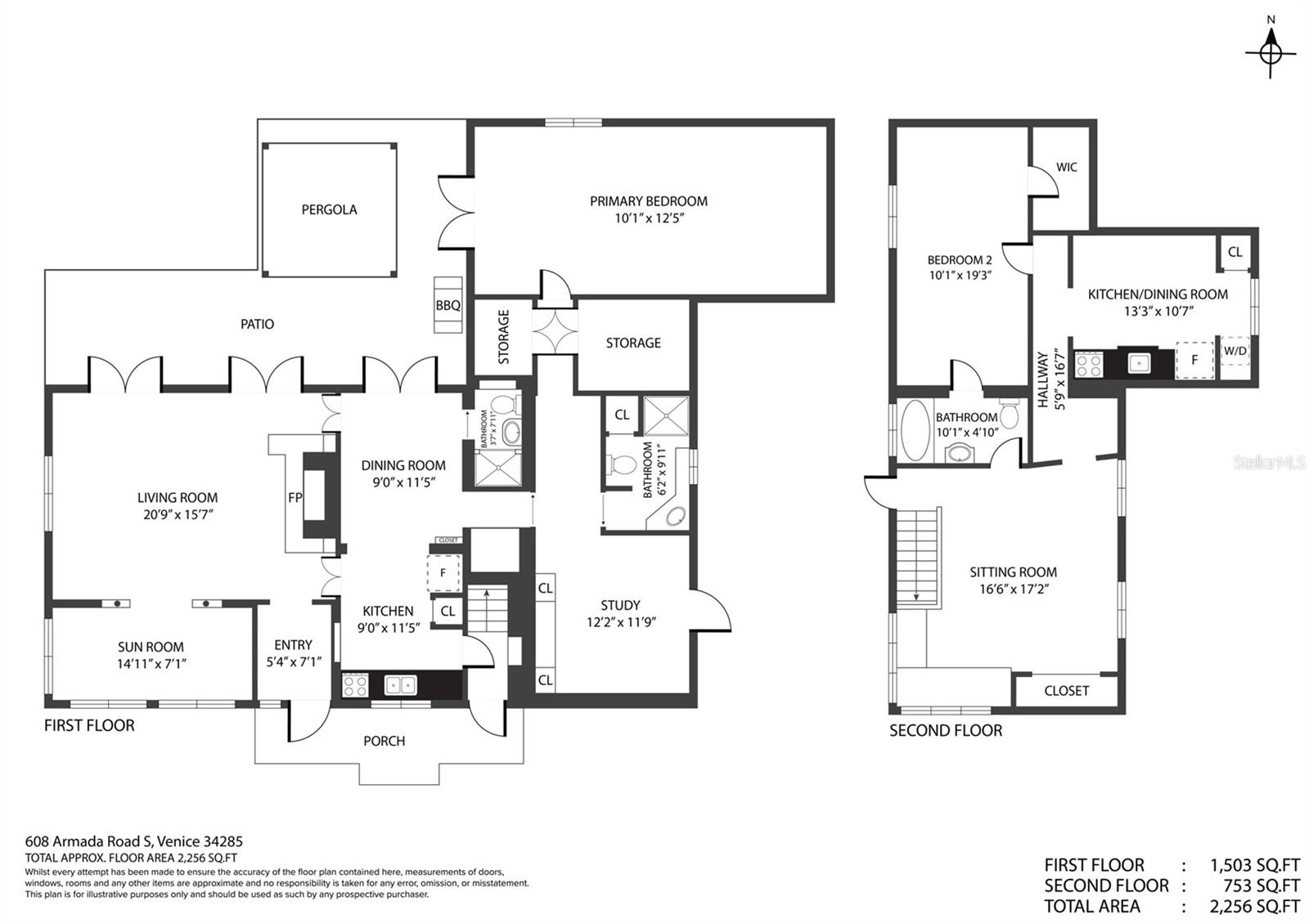
Living Area
2,736 Sqft
|
Lot Size
8,799 Sqft
|
| Property Features | Property Features | |||
|---|---|---|---|---|
| MLS ID: | MFRT3551999 | Year Built: | 1951 | |
| Appliances: | Dryer, Range, Refrigerator, Washer | Architectural Style: | Florida | |
| Construction Materials: | Block, Stucco | Cooling: | Central Air | |
| Country: | US | County Or Parish: | Sarasota | |
| Direction Faces: | South | Exterior Features: | French Doors, Lighting, Private Mailbox, Rain Gutters | |
| Fireplace Features: | Wood Burning | Flooring: | Tile, Wood | |
| Foundation Details: | Slab | Furnished: | Furnished | |
| Heating: | Central | Laundry Features: | Inside, Laundry Room | |
| Levels: | Two | Listing Agreement: | Exclusive Right To Sell | |
| Listing Terms: | Cash, Conventional, FHA, VA Loan | Lot Features: | City Limits, Landscaped, Near Marina, Paved | |
| Occupant Type: | Tenant | Other Equipment: | Irrigation Equipment | |
| Other Structures: | Gazebo | Parking Features: | Circular Driveway, Driveway, Off Street | |
| Patio And Porch Features: | Deck, Patio | Pets Allowed: | Yes | |
| Property Sub Type: | Single Family Residence | Property Type: | Residential | |
| Road Surface Type: | Paved | Roof: | Built-Up | |
| Sewer: | Public Sewer | Showing Requirements: | Appointment Only, ShowingTime | |
| Special Listing Conditions: | None | Standard Status: | Active | |
| State Or Province: | FL | Utilities: | Cable Connected, Electricity Connected | |
| Vegetation: | Mature Landscaping, Trees/Landscaped | View: | Garden, Trees/Woods | |
| Water Source: | Public | Window Features: | Drapes, Rods, Window Treatments | |
| Rooms | Rooms | |||
|---|---|---|---|---|
| Living Room: | 15x21 ft | Kitchen: | 9x12 ft | |
| Primary Bedroom: | 13x27 ft | Den: | ||
| Family Room: | ||||