
|
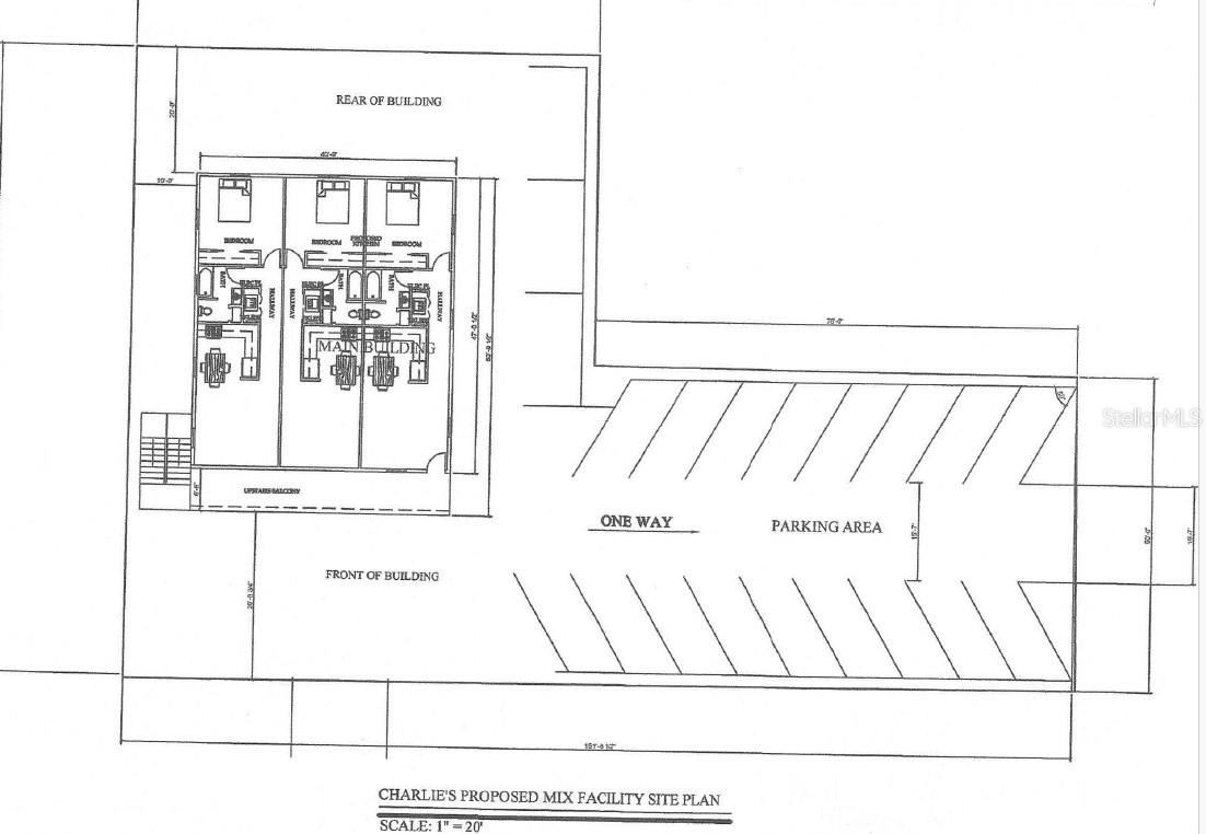
Lot Size
11,217 Sqft
|
| Property Features | Property Features | |||
|---|---|---|---|---|
| MLS ID: | MFRTB8315634 | Year Built: | ||
| Country: | US | Current Use: | Mixed Use | |
| Direction Faces: | South | Disclosures: | Land Sales Disclosure | |
| Listing Agreement: | Exclusive Right To Sell | Listing Terms: | Cash | |
| Property Type: | Land | Road Surface Type: | Asphalt, Paved | |
| Sewer: | None | Showing Requirements: | No Lockbox, See Remarks | |
| Special Listing Conditions: | None | Standard Status: | Active | |
| State Or Province: | FL | Utilities: | Electrical Nearby, Sewer Nearby, Water Nearby | |
| Water Source: | None | |||