
|
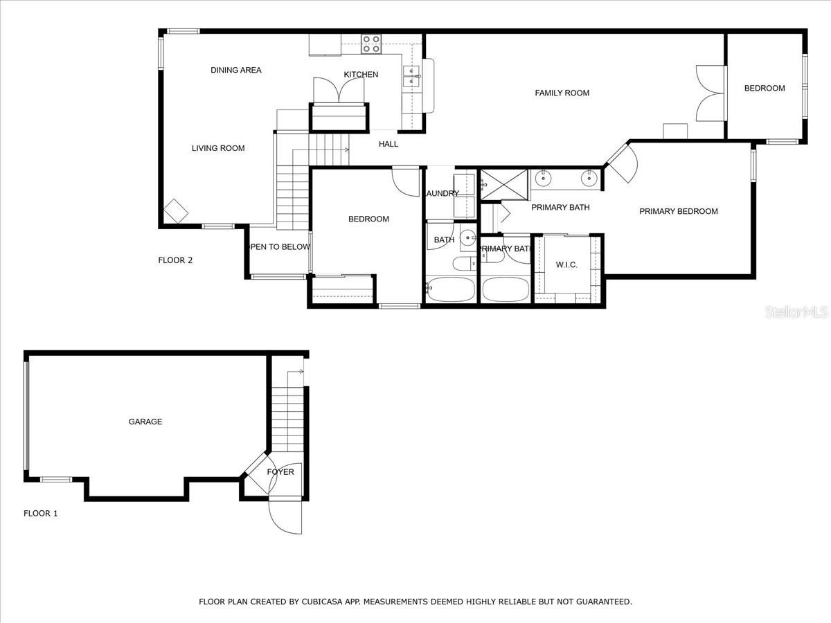
Bedrooms
2
|
Bathrooms
2
|
Living Area
1,353 Sqft
|
| Property Features | Property Features | |||
|---|---|---|---|---|
| MLS ID: | MFRTB8317591 | Year Built: | 1986 | |
| Appliances: | Dishwasher, Dryer, Electric Water Heater, Microwave, Range, Refrigerator, Washer | Association Amenities: | Pool, Tennis Court(s) | |
| Association Fee Includes: | Cable TV, Pool, Internet, Maintenance Structure, Maintenance Grounds, Management, Recreational Facilities, Sewer, Trash, Water | Community Features: | Community Mailbox, Pool, Sidewalks, Tennis Courts | |
| Construction Materials: | Brick, Wood Frame | Cooling: | Central Air | |
| Country: | US | Direction Faces: | South | |
| Disclosures: | Condominium Disclosure Available, Seller Property Disclosure | Exterior Features: | Lighting, Sidewalk | |
| Flooring: | Luxury Vinyl, Tile, Wood | Foundation Details: | Slab | |
| Heating: | Central | Laundry Features: | Electric Dryer Hookup, Inside, Washer Hookup | |
| Levels: | Two | Listing Agreement: | Exclusive Right To Sell | |
| Listing Terms: | Cash, Conventional | Occupant Type: | Owner | |
| Parking Features: | Driveway, Garage Door Opener, Guest | Pets Allowed: | Yes | |
| Property Sub Type: | Townhouse | Property Type: | Residential | |
| Road Surface Type: | Asphalt | Roof: | Metal | |
| Sewer: | Public Sewer | Showing Requirements: | Supra Lock Box, Appointment Only, Lock Box Electronic, ShowingTime | |
| Special Listing Conditions: | None | Standard Status: | Active | |
| State Or Province: | FL | Utilities: | Cable Available, Cable Connected, Electricity Available, Electricity Connected, Phone Available, Street Lights, Water Available, Water Connected | |
| Water Source: | Public | |||
| Rooms | Rooms | |||
|---|---|---|---|---|
| Living Room: | 12x28 ft | Kitchen: | 9x12 ft | |
| Dining Room: | 6x14 ft | Family Room: | 11x14 ft | |
| Primary Bedroom: | 12x14 ft | Bedroom 2: | 12x10 ft | |
| Bonus Room: | 10x7 ft | |||