
|
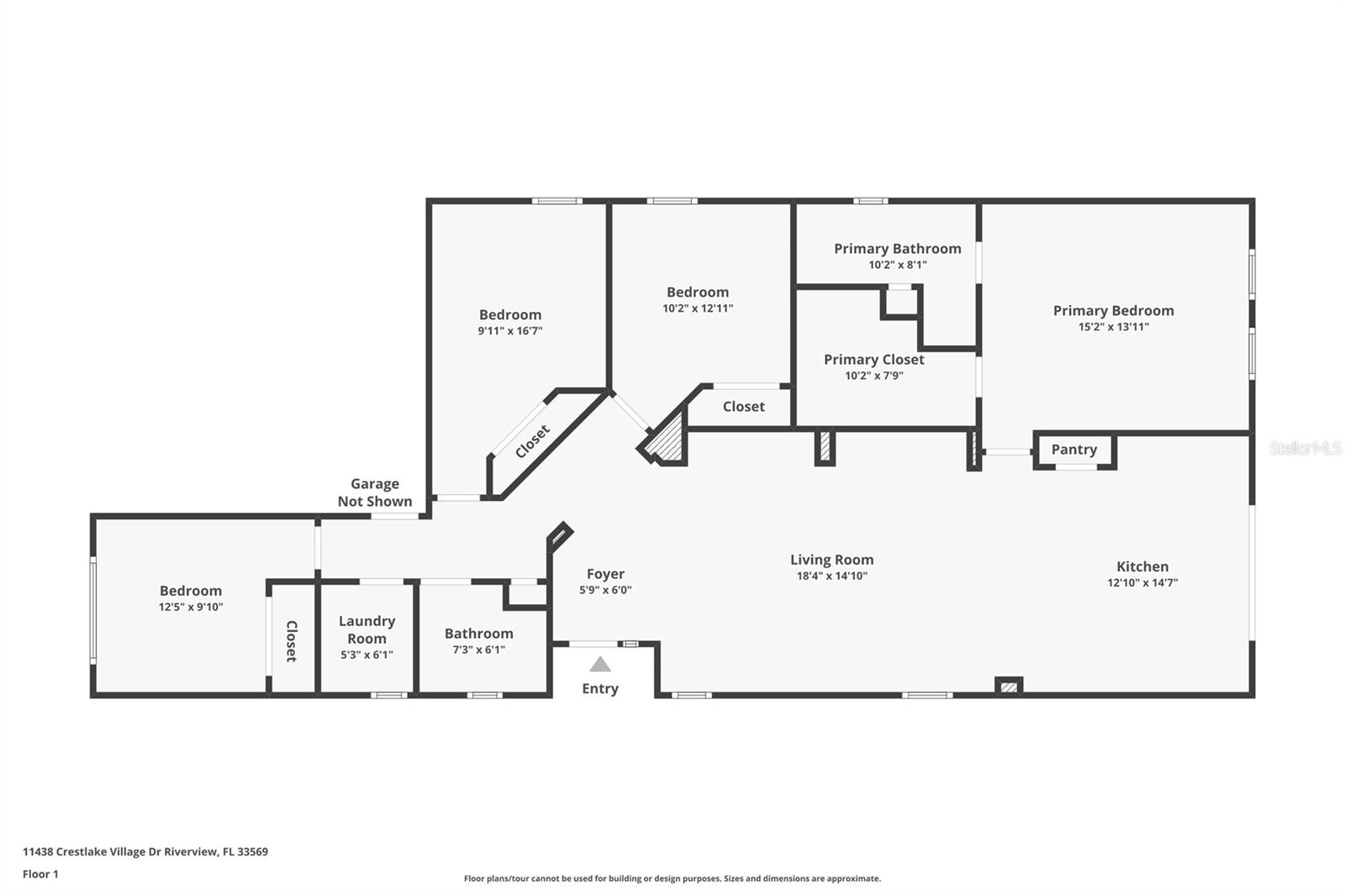
Bedrooms
4
|
Bathrooms
2
|
Living Area
1,675 Sqft
|
Lot Size
4,400 Sqft
|
| Property Features | Property Features | |||
|---|---|---|---|---|
| MLS ID: | MFRTB8321980 | Year Built: | 2004 | |
| Appliances: | Built-In Oven, Cooktop, Disposal, Exhaust Fan, Microwave, Other, Range | Architectural Style: | Contemporary | |
| Association Amenities: | Clubhouse, Other, Park, Pool, Tennis Court(s) | Association Fee Includes: | Pool, Other | |
| Community Features: | Clubhouse, Deed Restrictions, Park, Pool, Sidewalks, Tennis Courts | Construction Materials: | Block, Stucco | |
| Cooling: | Central Air | Country: | US | |
| Direction Faces: | West | Disclosures: | HOA/PUD/Condo Disclosure, Other Disclosures, Seller Property Disclosure | |
| Exterior Features: | Other, Sidewalk, Sliding Doors | Flooring: | Carpet, Tile | |
| Foundation Details: | Slab | Heating: | Central | |
| Laundry Features: | Inside, Laundry Room, Other | Levels: | One | |
| Listing Agreement: | Exclusive Right To Sell | Listing Terms: | Cash, Conventional, FHA, VA Loan | |
| Occupant Type: | Vacant | Parking Features: | Driveway, Other | |
| Pets Allowed: | Cats OK, Dogs OK | Property Sub Type: | Single Family Residence | |
| Property Type: | Residential | Road Surface Type: | Asphalt, Concrete | |
| Roof: | Shingle | Sewer: | Public Sewer | |
| Showing Requirements: | Supra Lock Box, Go Direct, Lock Box Electronic, See Remarks, ShowingTime | Special Listing Conditions: | None | |
| Standard Status: | Active | State Or Province: | FL | |
| Utilities: | Cable Available, Electricity Connected, Other | Water Source: | Public | |
| Rooms | Rooms | |||
|---|---|---|---|---|
| Primary Bedroom: | 13x18 ft | Bedroom 2: | 11x11 ft | |
| Bedroom 3: | 12x11 ft | Great Room: | 16x19 ft | |
| Kitchen: | 13x9 ft | Bedroom 4: | 11x11 ft | |