
|
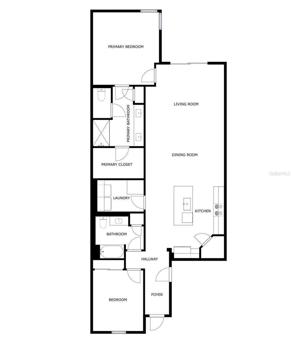
Bedrooms
2
|
Bathrooms
2
|
Living Area
1,405 Sqft
|
Lot Size
3,200 Sqft
|
| Property Features | Property Features | |||
|---|---|---|---|---|
| MLS ID: | MFRTB8331642 | Year Built: | 2023 | |
| Appliances: | Dishwasher, Disposal, Dryer, Electric Water Heater, Microwave, Range, Refrigerator, Washer | Architectural Style: | Florida | |
| Community Features: | Clubhouse, Deed Restrictions, Dog Park, Gated Community - Guard, Golf Carts OK, Park, Playground, Pool, Restaurant | Construction Materials: | Block, Stucco | |
| Cooling: | Central Air | Country: | US | |
| County Or Parish: | Pasco | Direction Faces: | Southwest | |
| Exterior Features: | Lighting, Sidewalk | Flooring: | Carpet, Ceramic Tile | |
| Foundation Details: | Slab | Furnished: | Unfurnished | |
| Heating: | Central | Horse Amenities: | None | |
| Laundry Features: | Laundry Room | Levels: | One | |
| Listing Agreement: | Exclusive Right To Sell | Listing Terms: | Cash, Conventional, FHA, VA Loan | |
| Lot Features: | Landscaped, Sidewalk, Paved | Occupant Type: | Owner | |
| Pets Allowed: | Yes | Possession: | Close Of Escrow | |
| Property Condition: | Completed | Property Sub Type: | Villa | |
| Property Type: | Residential | Road Surface Type: | Paved | |
| Roof: | Concrete, Tile | Sewer: | Public Sewer | |
| Showing Requirements: | Supra Lock Box, Appointment Only, See Remarks, ShowingTime | Special Listing Conditions: | None | |
| Standard Status: | Active | State Or Province: | FL | |
| Utilities: | Cable Connected, Electricity Connected, Sewer Connected, Water Connected | Water Source: | Public | |
| Rooms | Rooms | |||
|---|---|---|---|---|
| Kitchen: | 13x14 ft | Living Room: | 15x21 ft | |
| Primary Bedroom: | 14x13 ft | Primary Bathroom: | 6x10 ft | |
| Bedroom 2: | Bathroom 2: | |||
| Balcony/Porch/Lanai: | 10x12 ft | |||