
|
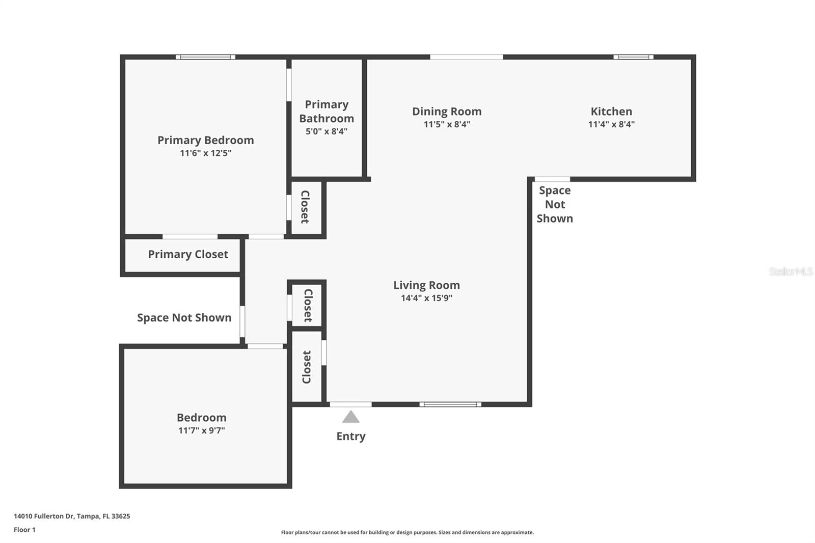
Bedrooms
2
|
Bathrooms
2
|
Living Area
990 Sqft
|
Lot Size
5,700 Sqft
|
| Property Features | Property Features | |||
|---|---|---|---|---|
| MLS ID: | MFRTB8333808 | Year Built: | 1984 | |
| Appliances: | Dishwasher, Microwave, Range, Refrigerator | Community Features: | Park, Playground, Sidewalks, Tennis Courts | |
| Construction Materials: | Block, Concrete | Cooling: | Central Air | |
| Country: | US | Direction Faces: | East | |
| Disclosures: | Seller Property Disclosure | Exterior Features: | Sidewalk | |
| Fencing: | Vinyl | Flooring: | Linoleum, Vinyl | |
| Foundation Details: | Block | Heating: | Central | |
| Laundry Features: | Inside, Laundry Room | Levels: | One | |
| Listing Agreement: | Exclusive Right To Sell | Listing Terms: | Cash, Conventional, FHA, VA Loan | |
| Lot Features: | Sidewalk, Paved | Occupant Type: | Vacant | |
| Parking Features: | Driveway | Patio And Porch Features: | Covered, Enclosed, Patio, Screened | |
| Property Sub Type: | Single Family Residence | Property Type: | Residential | |
| Road Surface Type: | Concrete | Roof: | Shingle | |
| Sewer: | Public Sewer | Showing Requirements: | Supra Lock Box, Appointment Only, ShowingTime | |
| Special Listing Conditions: | None | Standard Status: | Active | |
| State Or Province: | FL | Utilities: | Cable Available, Electricity Available, Phone Available, Sewer Available, Water Available | |
| Vegetation: | Mature Landscaping | Water Source: | Public | |
| Rooms | Rooms | |||
|---|---|---|---|---|
| Primary Bedroom: | Primary Bathroom: | |||
| Bedroom 1: | Bathroom 1: | |||
| Kitchen: | Living Room: | |||