
|
Bedrooms
4
|
Bathrooms
2
|
Living Area
2,009 Sqft
|
Lot Size
6,351 Sqft
|
| Property Features | Property Features | |||
|---|---|---|---|---|
| MLS ID: | MFRTB8339865 | Year Built: | 1952 | |
| Appliances: | Dishwasher, Microwave, Range, Refrigerator | Construction Materials: | Frame | |
| Cooling: | Central Air | Country: | US | |
| County Or Parish: | Pinellas | Direction Faces: | South | |
| Exterior Features: | Rain Gutters | Fencing: | Vinyl | |
| Flooring: | Carpet, Concrete, Tile | Foundation Details: | Slab | |
| Furnished: | Unfurnished | Green Indoor Air Quality: | Air Filters MERV 10+ | |
| Green Sustainability: | Recycled Materials | Heating: | Central | |
| Laundry Features: | Inside, Laundry Room | Levels: | One | |
| Listing Agreement: | Exclusive Right To Sell | Listing Terms: | Cash, Conventional, FHA, VA Loan | |
| Lot Features: | City Limits | Occupant Type: | Owner | |
| Other Structures: | Shed(s) | Parking Features: | Parking Pad | |
| Patio And Porch Features: | Covered, Rear Porch, Screened | Property Sub Type: | Single Family Residence | |
| Property Type: | Residential | Road Surface Type: | Asphalt | |
| Roof: | Shingle | Sewer: | Public Sewer | |
| Showing Requirements: | Appointment Only, ShowingTime | Special Listing Conditions: | None | |
| Standard Status: | Active | State Or Province: | FL | |
| Utilities: | Public | Vegetation: | Mature Landscaping | |
| Water Source: | Public | Window Features: | Storm Window(s) | |
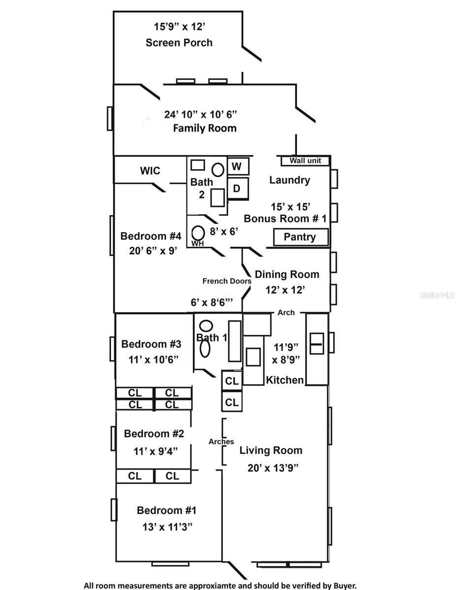
| Rooms | Rooms | |||
|---|---|---|---|---|
| Living Room: | 13.9x20 ft | Primary Bedroom: | 11.3x13 ft | |
| Bedroom 2: | 9.4x11 ft | Bedroom 3: | 10.6x11 ft | |
| Bedroom 4: | 9x20 ft | Kitchen: | 8.9x11.9 ft | |
| Dining Room: | 12x12 ft | Laundry: | 15x15 ft | |
| Family Room: | 10.6x24.1 ft | Balcony/Porch/Lanai: | 12x15.9 ft | |