
|
Bedrooms
3
|
Bathrooms
5
|
Living Area
2,138 Sqft
|
Lot Size
852 Sqft
|
| Property Features | Property Features | |||
|---|---|---|---|---|
| MLS ID: | MFRTB8343605 | Year Built: | 2006 | |
| Appliances: | Built-In Oven, Dishwasher, Disposal, Electric Water Heater, Exhaust Fan, Freezer, Ice Maker, Microwave, Range, Refrigerator, Water Softener | Architectural Style: | Florida, Traditional | |
| Association Amenities: | Cable TV, Clubhouse, Elevator(s), Fitness Center, Gated, Park, Playground, Pool, Recreation Facilities, Security | Association Fee Includes: | Guard - 24 Hour, Cable TV, Pool, Escrow Reserves Fund, Insurance, Internet, Maintenance Structure, Maintenance Grounds, Management, Pest Control, Private Road, Recreational Facilities, Security | |
| Community Features: | Association Recreation - Owned, Clubhouse, Community Mailbox, Deed Restrictions, Fitness Center, Gated Community - Guard, Golf Carts OK, Park, Playground, Pool, Sidewalks, Special Community Restrictions | Construction Materials: | Block, Stucco | |
| Cooling: | Central Air | Country: | US | |
| Direction Faces: | West | Disclosures: | Condominium Disclosure Available, Flood Disclosure, HOA/PUD/Condo Disclosure | |
| Exterior Features: | Balcony, Sidewalk, Sliding Doors | Flooring: | Carpet, Ceramic Tile, Wood | |
| Foundation Details: | Slab | Furnished: | Negotiable | |
| Heating: | Central, Electric | Laundry Features: | Laundry Closet, Upper Level | |
| Levels: | Three Or More | Listing Agreement: | Exclusive Right To Sell | |
| Listing Terms: | Cash, Conventional | Lot Features: | Flood Insurance Required, Near Marina, Sidewalk, Private | |
| Occupant Type: | Owner | Parking Features: | Alley Access, Garage Door Opener, Garage Faces Rear, Ground Level | |
| Patio And Porch Features: | Covered, Front Porch, Porch | Pets Allowed: | Yes | |
| Property Condition: | Completed | Property Sub Type: | Condominium | |
| Property Type: | Residential | Road Surface Type: | Paved | |
| Roof: | Tile | Sewer: | Public Sewer | |
| Showing Requirements: | 24 Hour Notice, No Lockbox, ShowingTime | Special Listing Conditions: | None | |
| Standard Status: | Active | State Or Province: | FL | |
| Utilities: | Cable Connected, Electricity Connected, Public, Sewer Connected, Street Lights, Underground Utilities, Water Connected | Vegetation: | Trees/Landscaped | |
| View: | Water | Water Source: | Public | |
| Window Features: | Blinds | |||
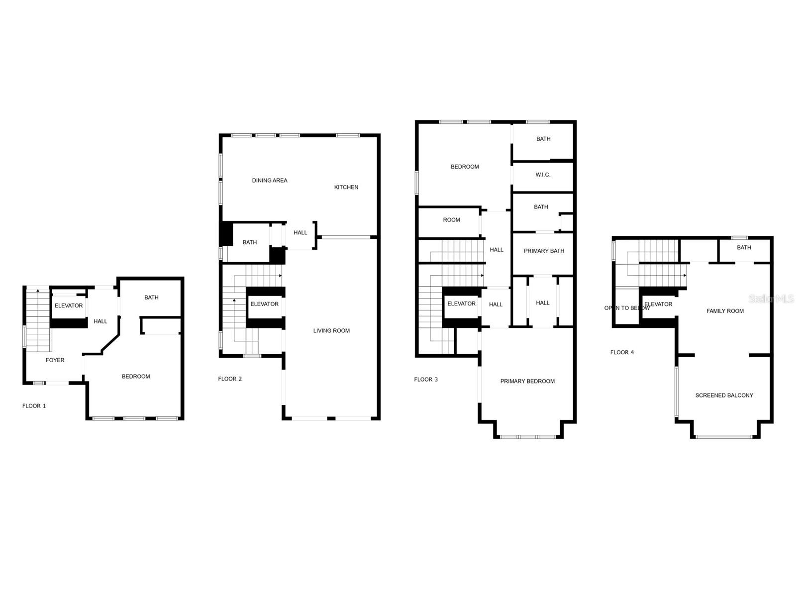
| Rooms | Rooms | |||
|---|---|---|---|---|
| Kitchen: | 14x9 ft | Living Room: | 24x13 ft | |
| Dining Room: | 11x10 ft | Primary Bedroom: | 15x13 ft | |
| Bedroom 2: | 12x11 ft | Den: | 14x13 ft | |
| Bedroom 3: | ||||