
|
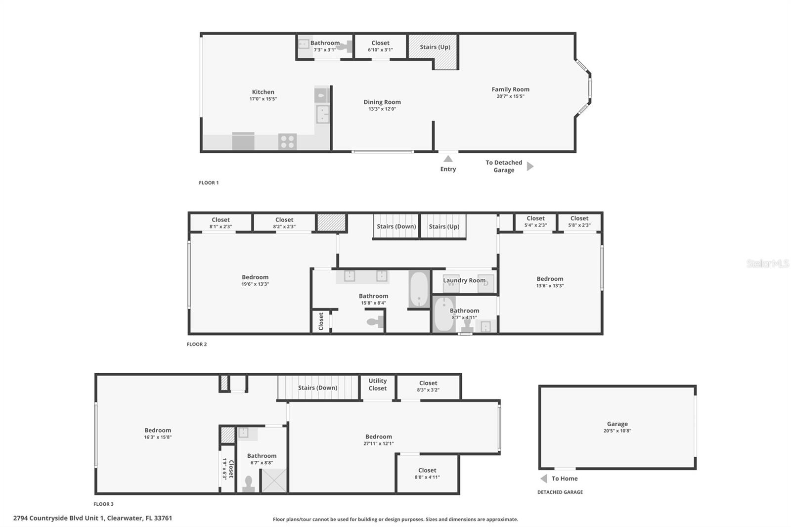
Bedrooms
3
|
Bathrooms
4
|
Living Area
2,400 Sqft
|
Lot Size
4,395 Sqft
|
| Property Features | Property Features | |||
|---|---|---|---|---|
| MLS ID: | MFRTB8343734 | Year Built: | 1991 | |
| Appliances: | Dishwasher, Dryer, Microwave, Range, Refrigerator, Washer | Association Fee Includes: | Maintenance Structure | |
| Community Features: | None | Construction Materials: | Stucco, Frame | |
| Cooling: | Central Air | Country: | US | |
| County Or Parish: | Pinellas | Direction Faces: | North | |
| Exterior Features: | Lighting, Other | Fireplace Features: | Family Room, Living Room | |
| Flooring: | Ceramic Tile, Luxury Vinyl, Marble | Foundation Details: | Slab | |
| Heating: | Central, Electric | Laundry Features: | Common Area, Electric Dryer Hookup, Inside, Upper Level | |
| Levels: | Three Or More | Listing Agreement: | Exclusive Right To Sell | |
| Listing Terms: | Cash, Conventional | Lot Features: | Corner Lot | |
| Occupant Type: | Vacant | Patio And Porch Features: | Rear Porch, Screened | |
| Pets Allowed: | Yes | Property Sub Type: | Townhouse | |
| Property Type: | Residential | Road Surface Type: | Asphalt | |
| Roof: | Shingle | Sewer: | Public Sewer | |
| Showing Requirements: | Lock Box Electronic-CBS Code Required | Special Listing Conditions: | None | |
| Standard Status: | Active | State Or Province: | FL | |
| Utilities: | Electricity Available, Sewer Available | Water Source: | Public | |
| Rooms | Rooms | |||
|---|---|---|---|---|
| Primary Bedroom: | Primary Bathroom: | |||
| Bathroom 2: | Bedroom 3: | |||
| Den: | Kitchen: | |||
| Living Room: | Dining Room: | |||