
|
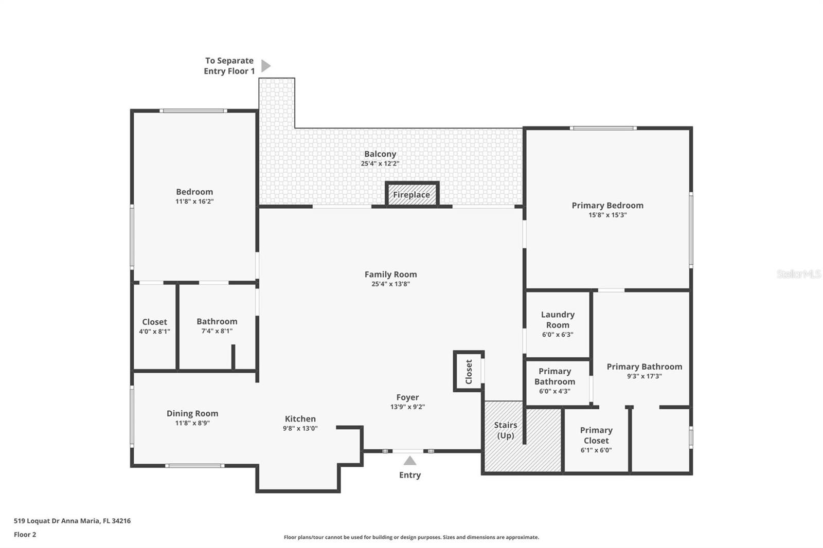
Bedrooms
4
|
Bathrooms
4
|
Living Area
2,606 Sqft
|
Lot Size
7,723 Sqft
|
| Property Features | Property Features | |||
|---|---|---|---|---|
| MLS ID: | MFRTB8343785 | Year Built: | 1980 | |
| Appliances: | Dishwasher, Disposal, Dryer, Range, Washer | Construction Materials: | Block, Stucco | |
| Cooling: | Central Air | Country: | US | |
| County Or Parish: | Manatee | Direction Faces: | Northwest | |
| Exterior Features: | Balcony, Courtyard, Lighting, Outdoor Grill, Outdoor Kitchen, Outdoor Shower | Fireplace Features: | Living Room | |
| Flooring: | Luxury Vinyl | Foundation Details: | Slab | |
| Heating: | Central | Laundry Features: | Inside | |
| Levels: | Three Or More | Listing Agreement: | Exclusive Right To Sell | |
| Occupant Type: | Vacant | Pool Features: | In Ground | |
| Property Sub Type: | Single Family Residence | Property Type: | Residential | |
| Road Surface Type: | Asphalt | Roof: | Metal | |
| Sewer: | Public Sewer | Showing Requirements: | 24 Hour Notice, Appointment Only, Call Listing Agent 2, Lock Box Coded, Lock Box Electronic, See Remarks, ShowingTime | |
| Spa Features: | In Ground | Special Listing Conditions: | None | |
| Standard Status: | Active | State Or Province: | FL | |
| Utilities: | BB/HS Internet Available, Cable Available, Electricity Available, Phone Available, Sewer Available, Water Available | View: | Water | |
| Water Source: | Public | |||
| Rooms | Rooms | |||
|---|---|---|---|---|
| Living Room: | 25x13 ft | Kitchen: | 9x13 ft | |
| Primary Bedroom: | 15x15 ft | |||