
|
Bedrooms
2
|
Bathrooms
2
|
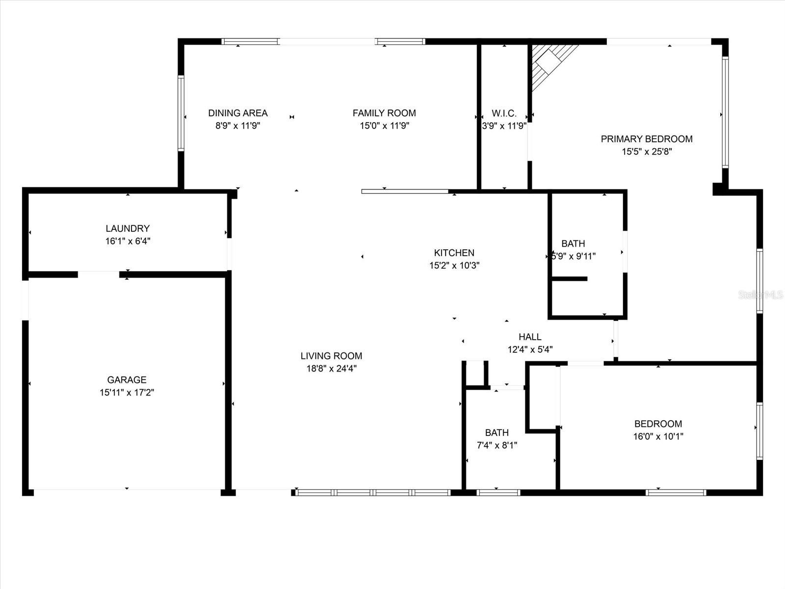
Living Area
1,672 Sqft
|
Lot Size
7,501 Sqft
|
| Property Features | Property Features | |||
|---|---|---|---|---|
| MLS ID: | MFRTB8343834 | Year Built: | 1957 | |
| Appliances: | None | Construction Materials: | Block, Stucco | |
| Cooling: | Central Air | Country: | US | |
| Direction Faces: | West | Disclosures: | Flood Disclosure, Lead Paint, Seller Property Disclosure | |
| Exterior Features: | Irrigation System, Rain Gutters, Sliding Doors, Sprinkler Metered | Fireplace Features: | Primary Bedroom, Wood Burning | |
| Flooring: | Concrete, Tile, Terrazzo, Wood | Foundation Details: | Slab | |
| Furnished: | Unfurnished | Heating: | Central | |
| Laundry Features: | Inside, Laundry Room | Levels: | One | |
| Listing Agreement: | Exclusive Right To Sell | Listing Terms: | Cash, Conventional | |
| Lot Features: | Flood Insurance Required, FloodZone, Landscaped, Near Marina, Paved | Occupant Type: | Vacant | |
| Parking Features: | Circular Driveway | Patio And Porch Features: | Covered, Front Porch, Porch, Rear Porch | |
| Pets Allowed: | Yes | Property Sub Type: | Single Family Residence | |
| Property Type: | Residential | Road Surface Type: | Asphalt | |
| Roof: | Shingle | Sewer: | Public Sewer | |
| Showing Requirements: | Supra Lock Box, Appointment Only, ShowingTime | Special Listing Conditions: | None | |
| Standard Status: | Active | State Or Province: | FL | |
| Utilities: | Cable Available, Electricity Connected, Sewer Connected, Water Connected | View: | Water | |
| Water Source: | Public | Waterfront Features: | Canal - Saltwater | |
| Window Features: | Blinds, Double Pane Windows, Impact Glass/Storm Windows, Insulated Windows | |||
| Rooms | Rooms | |||
|---|---|---|---|---|
| Living Room: | 19x13 ft | Kitchen: | 10x14.4 ft | |
| Primary Bedroom: | 15x26 ft | Bedroom 2: | 15x10.3 ft | |
| Family Room: | 13x22.7 ft | Laundry: | 6x15.6 ft | |