
|
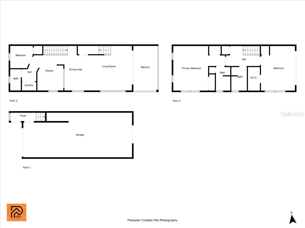
Bedrooms
3
|
Bathrooms
3
|
Living Area
1,360 Sqft
|
Lot Size
3,489 Sqft
|
| Property Features | Property Features | |||
|---|---|---|---|---|
| MLS ID: | MFRTB8353557 | Year Built: | 1996 | |
| Appliances: | Electric Water Heater, Microwave, Range | Cooling: | Central Air | |
| Country: | US | Furnished: | Unfurnished | |
| Heating: | Central, Electric | Laundry Features: | Laundry Room | |
| Lease Term: | 6-12 Month | Levels: | Two | |
| Occupant Type: | Vacant | Owner Pays: | None | |
| Pets Allowed: | No | Property Sub Type: | Half Duplex | |
| Property Type: | Residential Lease | Road Surface Type: | Asphalt | |
| Showing Requirements: | ShowingTime | Standard Status: | Active | |
| State Or Province: | FL | |||
| Rooms | Rooms | |||
|---|---|---|---|---|
| Dining Room: | 12x9 ft | Kitchen: | 9x9 ft | |
| Primary Bedroom: | 12x16 ft | Living Room: | 16x12 ft | |