
|
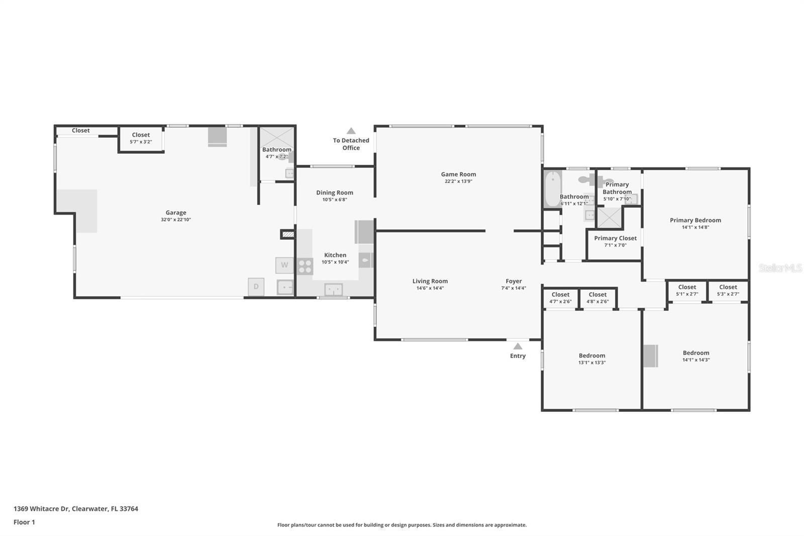
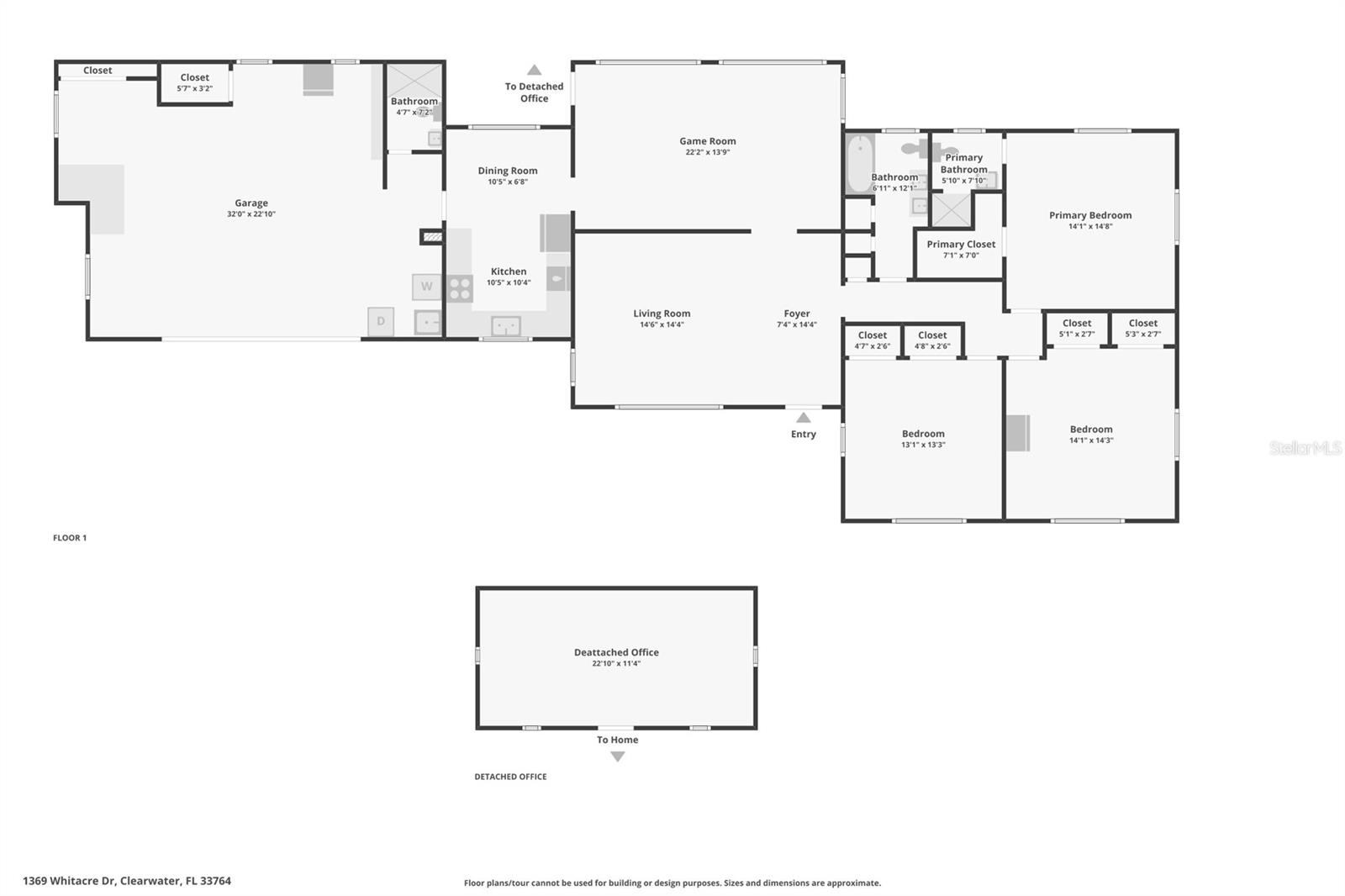
Bedrooms
3
|
Bathrooms
3
|
Living Area
1,843 Sqft
|
Lot Size
15,821 Sqft
|
| Property Features | Property Features | |||
|---|---|---|---|---|
| MLS ID: | MFRTB8353709 | Year Built: | 1956 | |
| Appliances: | Dishwasher, Dryer, Electric Water Heater, Exhaust Fan, Ice Maker, Microwave, Range, Range Hood, Refrigerator, Washer, Water Filtration System, Water Softener, Whole House R.O. System | Architectural Style: | Ranch | |
| Construction Materials: | Block, Stucco | Cooling: | Central Air | |
| Country: | US | Direction Faces: | West | |
| Disclosures: | Lead Paint, Seller Property Disclosure | Exterior Features: | Awning(s), Lighting, Rain Gutters | |
| Fencing: | Vinyl | Flooring: | Ceramic Tile, Wood | |
| Foundation Details: | Crawlspace, Slab | Furnished: | Unfurnished | |
| Heating: | Electric, Exhaust Fan, Heat Pump | Laundry Features: | Electric Dryer Hookup, In Garage, Washer Hookup | |
| Levels: | One | Listing Agreement: | Exclusive Right To Sell | |
| Listing Terms: | Cash, Conventional, FHA, VA Loan | Lot Features: | In County, Landscaped, Oversized Lot, Paved, Unincorporated | |
| Occupant Type: | Owner | Other Structures: | Workshop | |
| Parking Features: | Bath In Garage, Boat, Covered, Driveway, Garage Door Opener, Guest, Oversized, RV Parking, Workshop in Garage | Patio And Porch Features: | Covered | |
| Possession: | Close of Escrow | Property Sub Type: | Single Family Residence | |
| Property Type: | Residential | Road Responsibility: | Public Maintained Road | |
| Road Surface Type: | Asphalt | Roof: | Shingle | |
| Security Features: | Closed Circuit Camera(s), Security Lights, Security System, Security System Owned, Smoke Detector(s) | Sewer: | Septic Tank | |
| Showing Requirements: | ShowingTime | Spa Features: | Above Ground, Heated | |
| Special Listing Conditions: | None | Standard Status: | Active | |
| State Or Province: | FL | Utilities: | BB/HS Internet Available, Cable Connected, Electricity Connected, Public, Street Lights | |
| Vegetation: | Trees/Landscaped | Water Source: | Public | |
| Window Features: | Blinds, Double Pane Windows, Insulated Windows, Low Emissivity Windows, Window Treatments | |||
| Rooms | Rooms | |||
|---|---|---|---|---|
| Living Room: | 22x14.3 ft | Family Room: | 22x13.8 ft | |
| Kitchen: | 17x10.3 ft | Primary Bedroom: | 14.2x13.1 ft | |
| Bedroom 2: | 13.1x13.1 ft | Bathroom 3: | 13x13 ft | |