
|
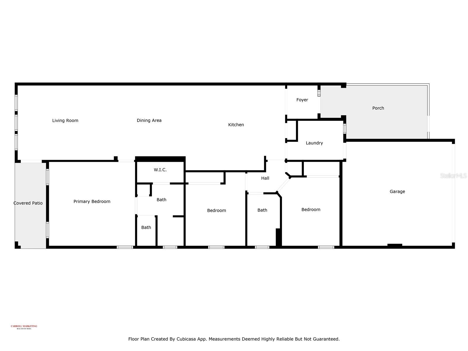
Bedrooms
3
|
Bathrooms
2
|
Living Area
1,669 Sqft
|
Lot Size
3,886 Sqft
|
| Property Features | Property Features | |||
|---|---|---|---|---|
| MLS ID: | MFRTB8353814 | Year Built: | 2022 | |
| Appliances: | Dishwasher, Disposal, Dryer, Electric Water Heater, Microwave, Range, Refrigerator, Washer | Community Features: | Gated Community - Guard, Pool | |
| Construction Materials: | Block | Cooling: | Central Air | |
| Country: | US | County Or Parish: | Hillsborough | |
| Direction Faces: | East | Flooring: | Ceramic Tile | |
| Foundation Details: | Slab | Heating: | Electric | |
| Laundry Features: | Laundry Room | Levels: | One | |
| Listing Agreement: | Exclusive Right To Sell | Listing Terms: | Cash, Conventional, FHA, VA Loan | |
| Occupant Type: | Tenant | Other Equipment: | Irrigation Equipment | |
| Pets Allowed: | Cats OK, Dogs OK | Property Sub Type: | Villa | |
| Property Type: | Residential | Road Surface Type: | Asphalt | |
| Roof: | Shingle | Sewer: | Public Sewer | |
| Showing Requirements: | 24 Hour Notice, Call Listing Agent, Call Owner | Special Listing Conditions: | None | |
| Standard Status: | Active | State Or Province: | FL | |
| Utilities: | Cable Connected, Sewer Connected, Water Connected | Water Source: | None | |
| Rooms | Rooms | |||
|---|---|---|---|---|
| Primary Bedroom: | Bathroom 1: | |||
| Bathroom 2: | Bedroom 2: | |||
| Bedroom 3: | Living Room: | |||
| Kitchen: | ||||