
|
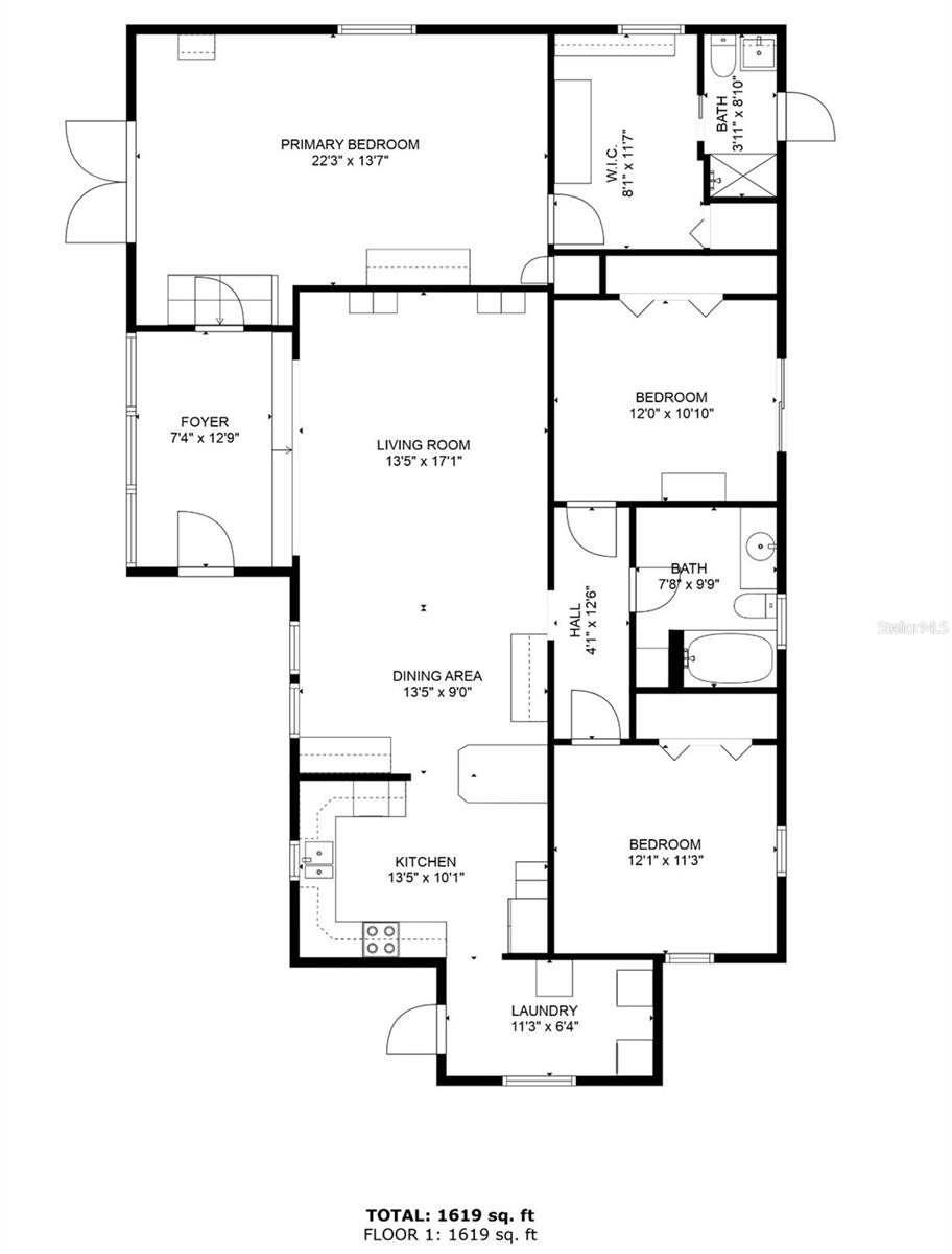
Bedrooms
3
|
Bathrooms
2
|
Living Area
1,532 Sqft
|
Lot Size
10,125 Sqft
|
| Property Features | Property Features | |||
|---|---|---|---|---|
| MLS ID: | MFRTB8353961 | Year Built: | 1957 | |
| Appliances: | Dishwasher, Disposal, Electric Water Heater, Microwave, Range, Refrigerator | Construction Materials: | Vinyl Siding, Wood Frame | |
| Cooling: | Central Air | Country: | US | |
| Direction Faces: | East | Exterior Features: | Rain Gutters | |
| Fencing: | Wood | Flooring: | Ceramic Tile, Laminate, Tile | |
| Foundation Details: | Crawlspace | Heating: | Central, Electric | |
| Laundry Features: | Inside | Levels: | One | |
| Listing Agreement: | Exclusive Right To Sell | Listing Terms: | Cash, Conventional | |
| Occupant Type: | Owner | Property Sub Type: | Single Family Residence | |
| Property Type: | Residential | Road Surface Type: | Asphalt | |
| Roof: | Metal | Sewer: | Septic Tank | |
| Showing Requirements: | ShowingTime | Special Listing Conditions: | None | |
| Standard Status: | Active | State Or Province: | FL | |
| Utilities: | BB/HS Internet Available, Cable Available, Electricity Available, Electricity Connected | Water Source: | Well | |
| Rooms | Rooms | |||
|---|---|---|---|---|
| Great Room: | 13.5x17.1 ft | Dining Room: | 13.5x9 ft | |
| Kitchen: | 13.5x10.1 ft | Primary Bedroom: | 22.3x13.7 ft | |
| Bedroom 2: | 12x11 ft | Bedroom 3: | 12x11 ft | |