
|
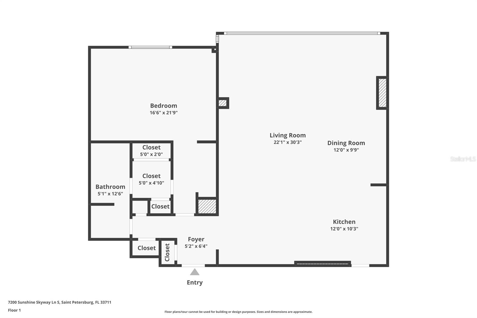
Bedrooms
1
|
Bathrooms
1
|
Living Area
1,100 Sqft
|
Lot Size
113,975 Sqft
|
| Property Features | Property Features | |||
|---|---|---|---|---|
| MLS ID: | MFRTB8367411 | Year Built: | 1972 | |
| Appliances: | Dishwasher, Electric Water Heater, Microwave, Range, Range Hood, Refrigerator | Association Amenities: | Cable TV, Clubhouse, Elevator(s), Fitness Center, Laundry, Lobby Key Required, Maintenance, Pool, Shuffleboard Court, Storage, Vehicle Restrictions, Wheelchair Access | |
| Association Fee Includes: | Cable TV, Pool, Escrow Reserves Fund, Insurance, Internet, Maintenance Structure, Maintenance Grounds, Management, Sewer, Trash, Water | Community Features: | Community Mailbox, Deed Restrictions, Fitness Center, Pool, Sidewalks, Wheelchair Access | |
| Construction Materials: | Concrete | Cooling: | Central Air | |
| Country: | US | Direction Faces: | West | |
| Exterior Features: | Sidewalk, Storage | Flooring: | Ceramic Tile, Laminate | |
| Foundation Details: | Pillar/Post/Pier | Heating: | Central, Electric | |
| Laundry Features: | Common Area | Levels: | One | |
| Listing Agreement: | Exclusive Right To Sell | Listing Terms: | Cash, Conventional | |
| Occupant Type: | Owner | Parking Features: | Common, Ground Level, Open | |
| Pets Allowed: | No | Property Sub Type: | Condominium | |
| Property Type: | Residential | Road Surface Type: | Paved | |
| Roof: | Built-Up | Sewer: | Public Sewer | |
| Showing Requirements: | Supra Lock Box, Lock Box Electronic, See Remarks, ShowingTime | Special Listing Conditions: | None | |
| Standard Status: | Active | State Or Province: | FL | |
| Utilities: | Electricity Connected, Sewer Connected, Street Lights, Underground Utilities, Water Connected | View: | Water | |
| Water Source: | Public | |||
| Rooms | Rooms | |||
|---|---|---|---|---|
| Great Room: | Kitchen: | |||
| Primary Bedroom: | ||||