
|
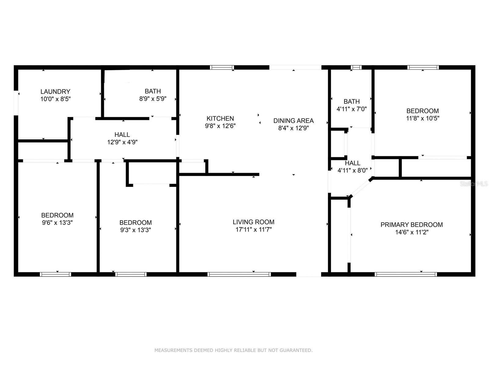
Bedrooms
4
|
Bathrooms
2
|
Living Area
1,726 Sqft
|
Lot Size
5,950 Sqft
|
| Property Features | Property Features | |||
|---|---|---|---|---|
| MLS ID: | MFRTB8367728 | Year Built: | 1984 | |
| Appliances: | Dryer, Microwave, Range, Refrigerator, Washer | Construction Materials: | Block, Stucco | |
| Cooling: | Central Air | Country: | US | |
| Direction Faces: | North | Exterior Features: | Other | |
| Flooring: | Hardwood | Foundation Details: | Slab | |
| Heating: | Central, Electric | Laundry Features: | Inside, Laundry Room | |
| Levels: | One | Listing Agreement: | Exclusive Right To Sell | |
| Occupant Type: | Vacant | Pool Features: | In Ground | |
| Property Sub Type: | Single Family Residence | Property Type: | Residential | |
| Road Surface Type: | Asphalt | Roof: | Shingle | |
| Sewer: | Public Sewer | Showing Requirements: | Appointment Only, Call Before Showing | |
| Special Listing Conditions: | None | Standard Status: | Active | |
| State Or Province: | FL | Utilities: | Cable Available, Electricity Available | |
| Water Source: | Public | |||
| Rooms | Rooms | |||
|---|---|---|---|---|
| Living Room: | 19x12 ft | Dining Room: | 8x14 ft | |
| Kitchen: | 11x14 ft | Primary Bedroom: | 12x12 ft | |
| Bathroom 1: | 8x6 ft | Bedroom 2: | 10x12 ft | |
| Bedroom 3: | 12x12 ft | Bathroom 4: | 12x14 ft | |