
|
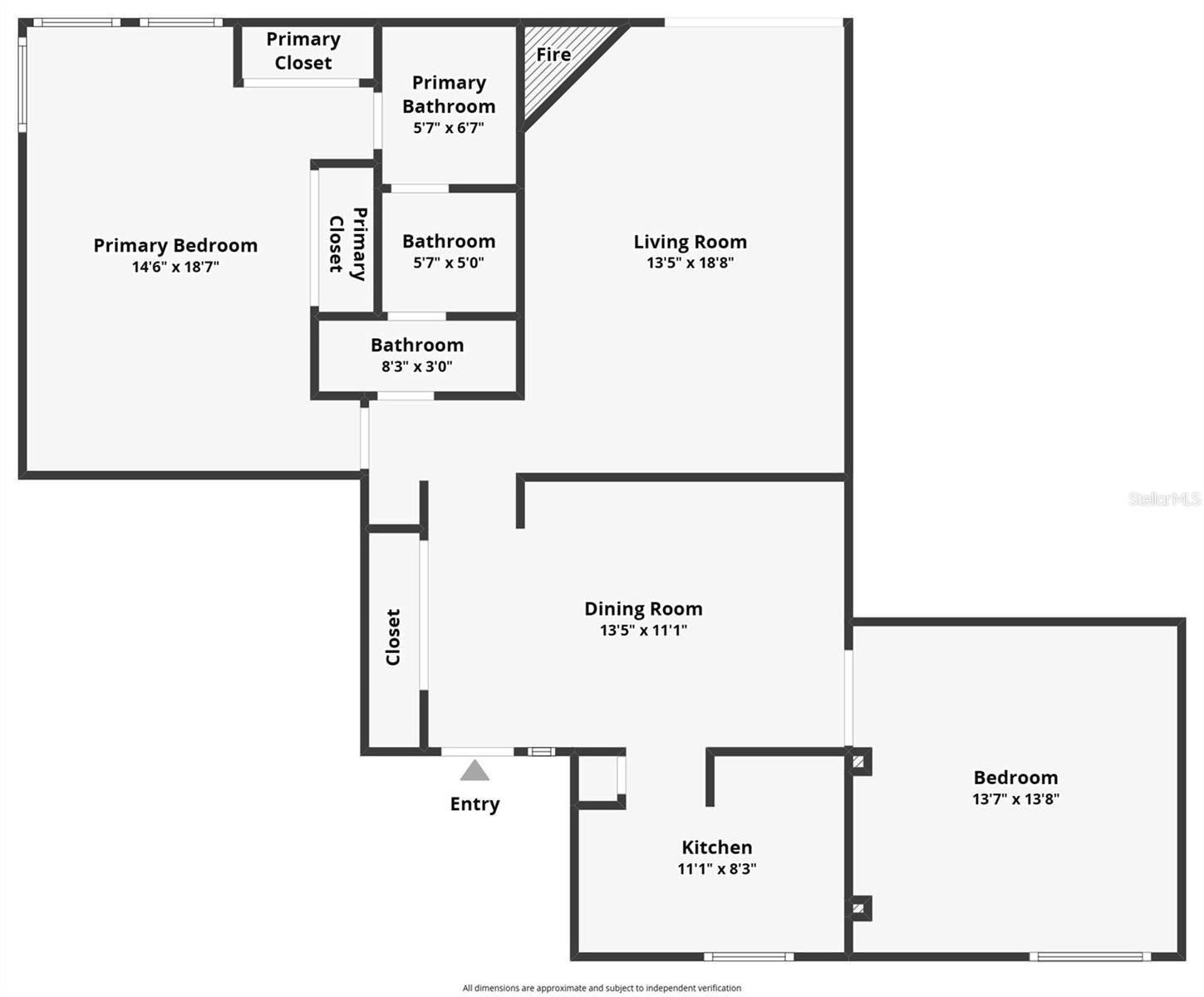
Bedrooms
2
|
Bathrooms
2
|
Living Area
1,100 Sqft
|
Lot Size
107,363 Sqft
|
| Property Features | Property Features | |||
|---|---|---|---|---|
| MLS ID: | MFRTB8367958 | Year Built: | 1980 | |
| Appliances: | Dishwasher, Disposal, Dryer, Electric Water Heater, Microwave, Range Hood, Refrigerator, Washer | Community Features: | Clubhouse, Deed Restrictions, Fitness Center, Playground, Pool, Sidewalks, Tennis Court(s), Street Lights | |
| Construction Materials: | Block, Frame | Cooling: | Central Air | |
| Country: | US | County Or Parish: | Pinellas | |
| Direction Faces: | East | Exterior Features: | Outdoor Grill, Outdoor Kitchen, Outdoor Shower, Private Mailbox, Rain Gutters, Sidewalk, Sliding Doors, Storage, Tennis Court(s) | |
| Fireplace Features: | Electric, Living Room | Flooring: | Ceramic Tile | |
| Foundation Details: | Slab | Furnished: | Turnkey | |
| Heating: | Central, Electric | Laundry Features: | Laundry Closet | |
| Levels: | One | Listing Agreement: | Exclusive Right To Sell | |
| Listing Terms: | Cash, Conventional | Occupant Type: | Owner | |
| Parking Features: | Assigned, Covered | Pets Allowed: | Yes | |
| Property Sub Type: | Villa | Property Type: | Residential | |
| Road Surface Type: | Paved | Roof: | Shingle | |
| Sewer: | Public Sewer | Showing Requirements: | ShowingTime | |
| Special Listing Conditions: | None | Standard Status: | Active | |
| State Or Province: | FL | Utilities: | Cable Connected, Electricity Connected, Sewer Connected, Water Connected | |
| Water Source: | Private | |||
| Rooms | Rooms | |||
|---|---|---|---|---|
| Living Room: | Dining Room: | |||
| Kitchen: | Primary Bedroom: | |||
| Bathroom 2: | ||||