
|
Bedrooms
2
|
Bathrooms
3
|
Living Area
1,513 Sqft
|
Lot Size
1,764 Sqft
|
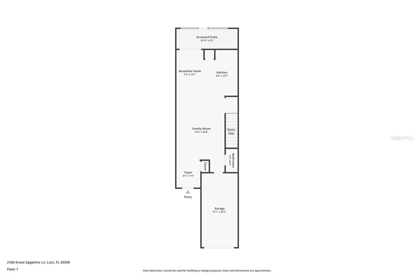
| Property Features | Property Features | |||
|---|---|---|---|---|
| MLS ID: | MFRTB8368750 | Year Built: | 2022 | |
| Appliances: | Cooktop, Dishwasher, Disposal, Dryer, Microwave, Refrigerator, Washer | Community Features: | Sidewalks | |
| Cooling: | Central Air | Country: | US | |
| Furnished: | Negotiable | Heating: | Central | |
| Laundry Features: | Laundry Room | Levels: | Two | |
| Occupant Type: | Vacant | Owner Pays: | Grounds Care, Laundry, Pest Control, Sewer, Taxes, Trash Collection, Water | |
| Pets Allowed: | Cats OK, Dogs OK, Monthly Pet Fee, Number Limit | Possession: | Rental Agreement | |
| Property Sub Type: | Townhouse | Property Type: | Residential Lease | |
| Road Surface Type: | Asphalt | Showing Requirements: | Appointment Only | |
| Standard Status: | Active | State Or Province: | FL | |
| View: | Trees/Woods, Water | |||