
|
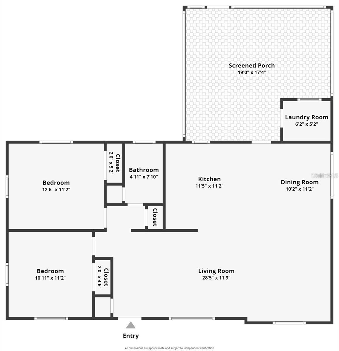
Bedrooms
2
|
Bathrooms
1
|
Living Area
1,056 Sqft
|
Lot Size
9,714 Sqft
|
| Property Features | Property Features | |||
|---|---|---|---|---|
| MLS ID: | MFRTB8369184 | Year Built: | 1958 | |
| Appliances: | Dishwasher, Dryer, Range, Refrigerator, Washer | Cooling: | Central Air | |
| Country: | US | Direction Faces: | South | |
| Exterior Features: | Sliding Doors | Fencing: | Fenced | |
| Flooring: | Luxury Vinyl | Furnished: | Unfurnished | |
| Heating: | Central | Laundry Features: | Laundry Room, Outside | |
| Levels: | One | Occupant Type: | Vacant | |
| Owner Pays: | Grounds Care | Patio And Porch Features: | Covered, Enclosed, Rear Porch, Screened | |
| Pets Allowed: | Yes | Property Sub Type: | Single Family Residence | |
| Property Type: | Residential Lease | Road Surface Type: | Paved | |
| Sewer: | Public Sewer | Showing Requirements: | Appointment Only, ShowingTime | |
| Standard Status: | Active | State Or Province: | FL | |
| Utilities: | Sewer Connected, Water Connected | Water Source: | Public | |
| Rooms | Rooms | |||
|---|---|---|---|---|
| Kitchen: | Living Room: | |||
| Primary Bedroom: | ||||