
|
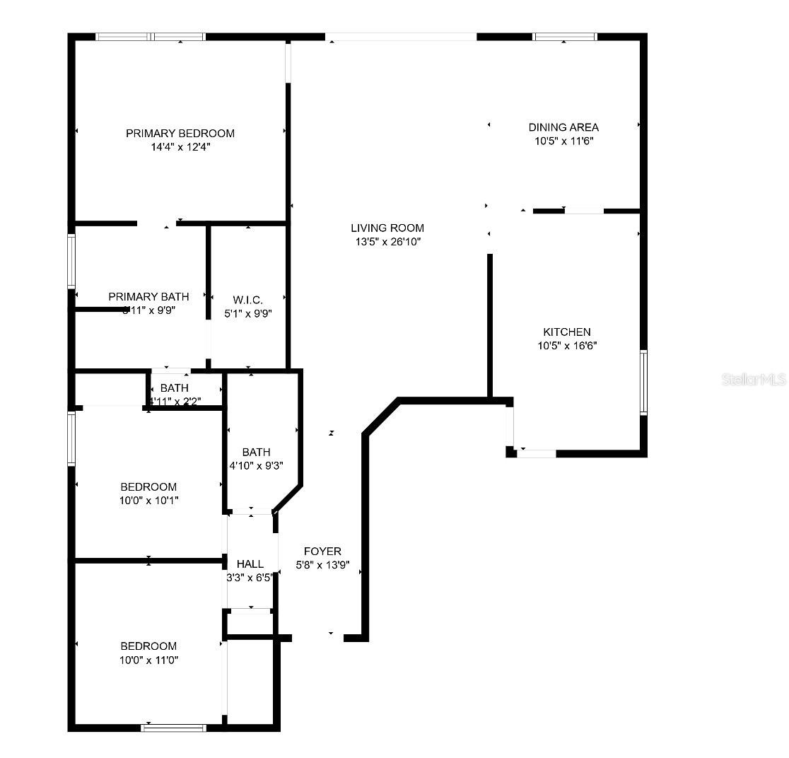
Bedrooms
3
|
Bathrooms
2
|
Living Area
1,525 Sqft
|
Lot Size
5,150 Sqft
|
| Property Features | Property Features | |||
|---|---|---|---|---|
| MLS ID: | MFRTB8369313 | Year Built: | 2000 | |
| Appliances: | Dishwasher, Disposal, Dryer, Electric Water Heater, Exhaust Fan, Range, Refrigerator, Washer | Construction Materials: | Block, Stucco | |
| Cooling: | Central Air | Country: | US | |
| County Or Parish: | Pasco | Direction Faces: | South | |
| Exterior Features: | Lighting, Private Mailbox, Sidewalk, Sliding Doors | Flooring: | Laminate, Luxury Vinyl, Tile | |
| Foundation Details: | Slab | Heating: | Central, Electric, Heat Pump | |
| Laundry Features: | In Garage | Levels: | One | |
| Listing Agreement: | Exclusive Right To Sell | Occupant Type: | Owner | |
| Other Equipment: | Irrigation Equipment | Pets Allowed: | Yes | |
| Property Sub Type: | Single Family Residence | Property Type: | Residential | |
| Road Surface Type: | Asphalt | Roof: | Shingle | |
| Sewer: | Public Sewer | Showing Requirements: | Appointment Only, Listing Agent Must Accompany | |
| Special Listing Conditions: | None | Standard Status: | Active | |
| State Or Province: | FL | Utilities: | Fiber Optics, Public | |
| Water Source: | Public | |||
| Rooms | Rooms | |||
|---|---|---|---|---|
| Kitchen: | Primary Bedroom: | |||
| Living Room: | ||||