
|
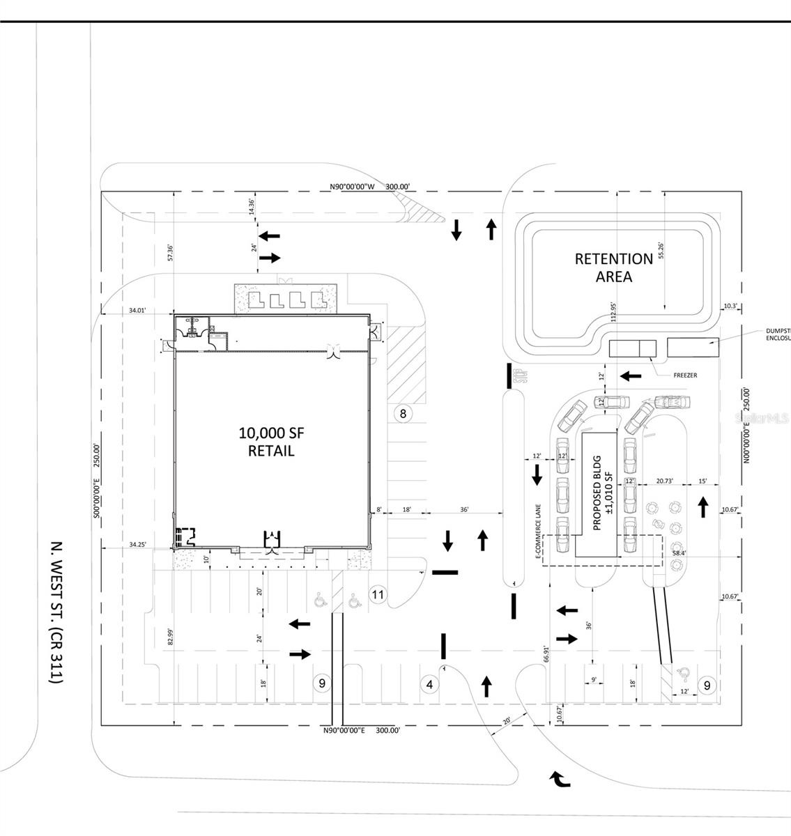
Lot Size
74,052 Sqft
|
| Property Features | Property Features | |||
|---|---|---|---|---|
| MLS ID: | MFRTB8375242 | Year Built: | ||
| Country: | US | County Or Parish: | Sumter | |
| Current Use: | Commercial | Listing Agreement: | Exclusive Right To Sell | |
| Listing Terms: | Cash, Conventional | Lot Features: | Buildable, Cleared, Corner Lot, City Limits | |
| Property Type: | Land | Road Frontage Type: | County Road, Divided Highway | |
| Road Surface Type: | Paved | Sewer: | Public Sewer | |
| Showing Requirements: | Go Direct | Special Listing Conditions: | None | |
| Standard Status: | Active | State Or Province: | FL | |
| Utilities: | Electricity Available, Sewer Available, Water Available | Water Source: | None | |