
|
Bedrooms
2
|
Bathrooms
1
|
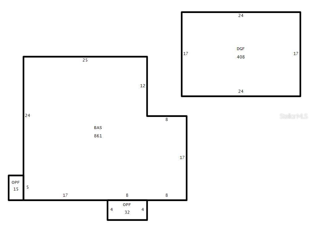
Living Area
861 Sqft
|
Lot Size
6,939 Sqft
|
| Property Features | Property Features | |||
|---|---|---|---|---|
| MLS ID: | MFRTB8375726 | Year Built: | 1954 | |
| Appliances: | None | Construction Materials: | Stucco, Frame | |
| Cooling: | Central Air | Country: | US | |
| County Or Parish: | Pinellas | Direction Faces: | East | |
| Exterior Features: | Private Mailbox, Sidewalk | Flooring: | Concrete | |
| Foundation Details: | Slab | Heating: | Central | |
| Laundry Features: | Laundry Closet, None | Levels: | One | |
| Listing Agreement: | Exclusive Agency | Listing Terms: | Cash | |
| Occupant Type: | Vacant | Parking Features: | Driveway, Garage Faces Side | |
| Property Condition: | Fixer | Property Sub Type: | Single Family Residence | |
| Property Type: | Residential | Road Surface Type: | Asphalt, Paved | |
| Roof: | Shingle | Sewer: | Public Sewer | |
| Showing Requirements: | Supra Lock Box, ShowingTime | Special Listing Conditions: | None | |
| Standard Status: | Active | State Or Province: | FL | |
| Utilities: | Public | Water Source: | Public | |
| Rooms | Rooms | |||
|---|---|---|---|---|
| Primary Bedroom: | Bedroom 2: | |||
| Bathroom 1: | Kitchen: | |||
| Family Room: | Dining Room: | |||
| Living Room: | ||||