
|
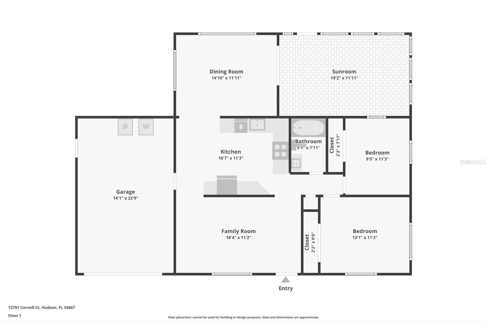
Bedrooms
2
|
Bathrooms
1
|
Living Area
1,032 Sqft
|
Lot Size
9,280 Sqft
|
| Property Features | Property Features | |||
|---|---|---|---|---|
| MLS ID: | MFRTB8376327 | Year Built: | 1972 | |
| Appliances: | Dishwasher, Microwave, Range, Refrigerator | Architectural Style: | Ranch | |
| Construction Materials: | Block | Cooling: | Central Air | |
| Country: | US | County Or Parish: | Pasco | |
| Direction Faces: | East | Exterior Features: | Sliding Doors | |
| Flooring: | Laminate | Foundation Details: | Slab | |
| Furnished: | Unfurnished | Heating: | Electric | |
| Laundry Features: | In Garage | Levels: | One | |
| Listing Agreement: | Exclusive Right To Sell | Listing Terms: | Cash, Conventional, FHA, Lease Purchase, Owner Financing, VA Loan | |
| Occupant Type: | Vacant | Pets Allowed: | Yes | |
| Property Sub Type: | Single Family Residence | Property Type: | Residential | |
| Road Surface Type: | Paved | Roof: | Shingle | |
| Sewer: | Public Sewer | Showing Requirements: | Combination Lock Box, Lockbox | |
| Special Listing Conditions: | None | Standard Status: | Active | |
| State Or Province: | FL | Utilities: | BB/HS Internet Available, Cable Available, Fiber Optics | |
| Water Source: | Public | |||
| Rooms | Rooms | |||
|---|---|---|---|---|
| Living Room: | Kitchen: | |||
| Primary Bedroom: | ||||