
|
Bedrooms
3
|
Bathrooms
2
|
Living Area
1,700 Sqft
|
Lot Size
8,800 Sqft
|
| Property Features | Property Features | |||
|---|---|---|---|---|
| MLS ID: | MFRTB8382446 | Year Built: | 1982 | |
| Appliances: | Cooktop, Dishwasher, Electric Water Heater, Microwave, Refrigerator | Construction Materials: | Brick | |
| Cooling: | Central Air | Country: | US | |
| County Or Parish: | Hillsborough | Direction Faces: | East | |
| Flooring: | Carpet, Ceramic Tile | Foundation Details: | Slab | |
| Heating: | Electric, Heat Pump | Laundry Features: | Electric Dryer Hookup, Washer Hookup | |
| Levels: | One | Listing Agreement: | Exclusive Right To Sell | |
| Listing Terms: | Cash, Conventional, FHA, VA Loan | Occupant Type: | Vacant | |
| Other Equipment: | Irrigation Equipment | Pool Features: | In Ground | |
| Possession: | Close Of Escrow | Property Condition: | Completed | |
| Property Sub Type: | Single Family Residence | Property Type: | Residential | |
| Road Surface Type: | Asphalt, Paved | Roof: | Shingle | |
| Sewer: | Public Sewer | Showing Requirements: | Combination Lock Box, See Remarks, ShowingTime | |
| Special Listing Conditions: | None | Standard Status: | Active | |
| State Or Province: | FL | Utilities: | Cable Connected, Electricity Connected, Sewer Connected, Water Connected | |
| Water Source: | Public | |||
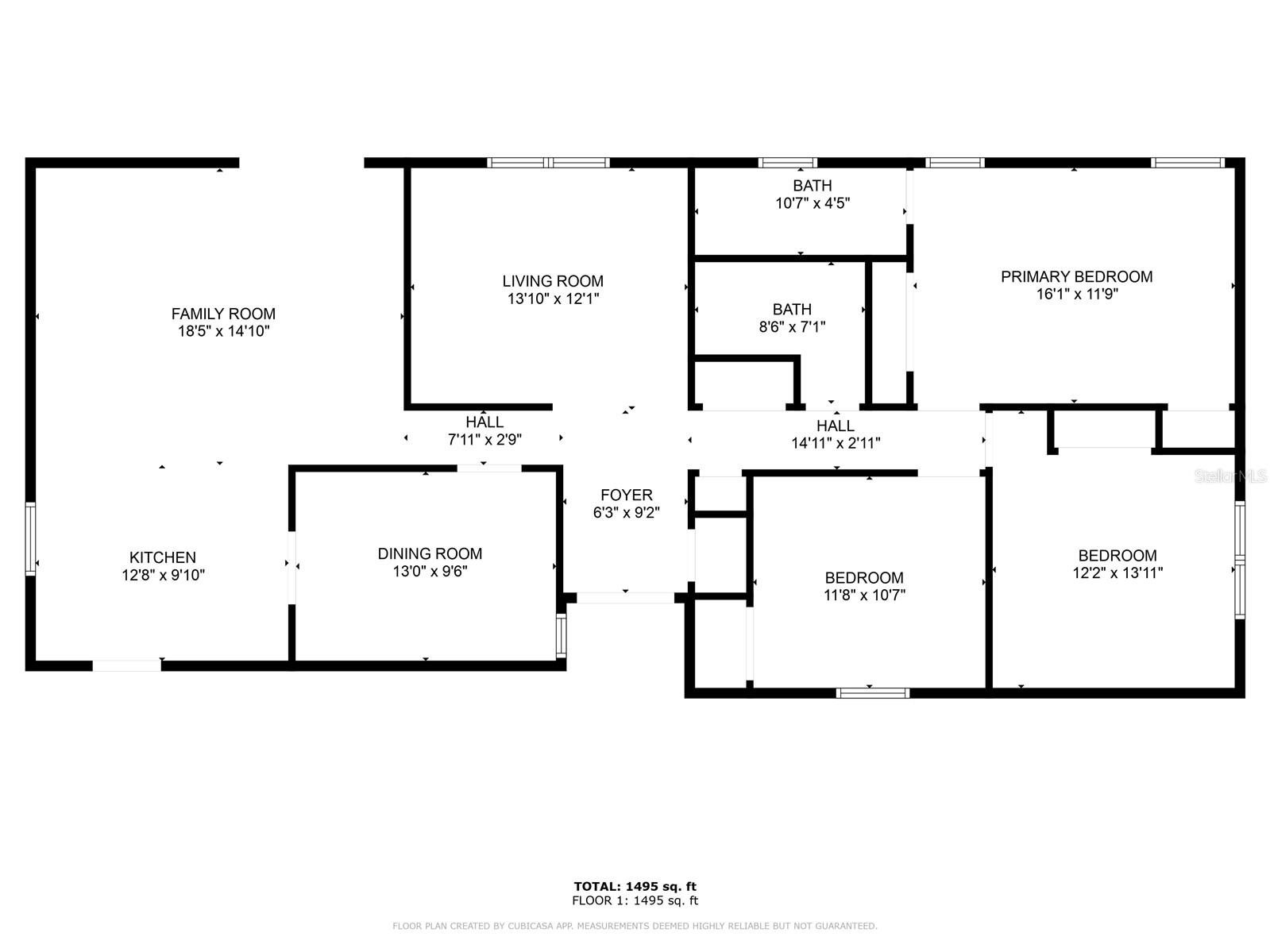
| Rooms | Rooms | |||
|---|---|---|---|---|
| Primary Bedroom: | 16x11 ft | Primary Bathroom: | 12x14 ft | |
| Bedroom 3: | 12x10 ft | Bathroom 1: | 10x4 ft | |
| Bathroom 2: | 8x7 ft | Living Room: | 14x12 ft | |
| Dining Room: | 13x10 ft | Family Room: | 18x15 ft | |
| Kitchen: | 12x10 ft | |||