
|
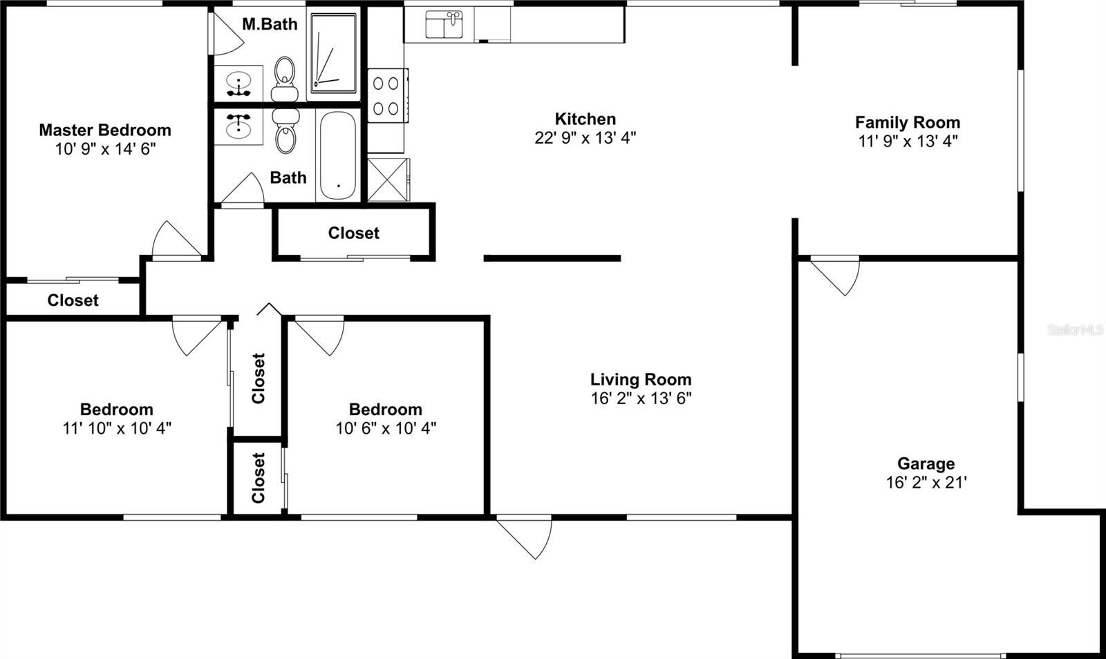
Bedrooms
3
|
Bathrooms
2
|
Living Area
1,344 Sqft
|
Lot Size
7,841 Sqft
|
| Property Features | Property Features | |||
|---|---|---|---|---|
| MLS ID: | MFRTB8383831 | Year Built: | 1978 | |
| Appliances: | Dishwasher, Microwave, Range, Refrigerator | Construction Materials: | Block | |
| Cooling: | Central Air | Country: | US | |
| County Or Parish: | Brevard | Direction Faces: | Northwest | |
| Exterior Features: | Sidewalk | Flooring: | Luxury Vinyl, Tile | |
| Foundation Details: | Slab | Heating: | Central | |
| Laundry Features: | Electric Dryer Hookup, Laundry Closet, Washer Hookup | Levels: | One | |
| Listing Agreement: | Exclusive Right To Sell | Listing Terms: | Cash, Conventional, FHA, VA Loan | |
| Occupant Type: | Vacant | Pets Allowed: | Yes | |
| Possession: | Close Of Escrow | Property Sub Type: | Single Family Residence | |
| Property Type: | Residential | Road Surface Type: | Paved | |
| Roof: | Shingle | Sewer: | Public Sewer | |
| Showing Requirements: | Appointment Only, Combination Lock Box, Lockbox | Special Listing Conditions: | None | |
| Standard Status: | Active | State Or Province: | FL | |
| Utilities: | Cable Connected, Electricity Connected, Sewer Connected, Water Connected | Water Source: | Public | |
| Rooms | Rooms | |||
|---|---|---|---|---|
| Primary Bedroom: | 11x14 ft | Primary Bathroom: | 8x7 ft | |
| Kitchen: | 23x13 ft | Family Room: | 12x13 ft | |
| Living Room: | 16x13 ft | Bedroom 1: | 11x10 ft | |
| Bedroom 2: | 10x10 ft | |||