
|
Bedrooms
1
|
Bathrooms
1
|
Living Area
580 Sqft
|
Lot Size
44,729 Sqft
|
| Property Features | Property Features | |||
|---|---|---|---|---|
| MLS ID: | MFRTB8385929 | Year Built: | 1975 | |
| Appliances: | Dishwasher, Electric Water Heater, Microwave, Refrigerator, Solar Hot Water | Construction Materials: | Block, Concrete, Stucco | |
| Cooling: | Central Air | Country: | US | |
| County Or Parish: | Pinellas | Direction Faces: | Southeast | |
| Exterior Features: | Outdoor Grill | Flooring: | Tile | |
| Foundation Details: | Slab | Heating: | Central, Electric | |
| Laundry Features: | Common Area | Levels: | One | |
| Listing Agreement: | Exclusive Right To Sell | Listing Terms: | Cash, Conventional | |
| Occupant Type: | Vacant | Property Sub Type: | Modular Home | |
| Property Type: | Residential | Road Surface Type: | Asphalt | |
| Roof: | Other | Sewer: | Public Sewer | |
| Showing Requirements: | Supra Lock Box, ShowingTime | Special Listing Conditions: | None | |
| Standard Status: | Active | State Or Province: | FL | |
| Utilities: | Cable Connected, Electricity Connected, Sewer Connected, Water Connected | Water Source: | Public | |
| Waterfront Features: | Bay/Harbor, Intracoastal Waterway | |||
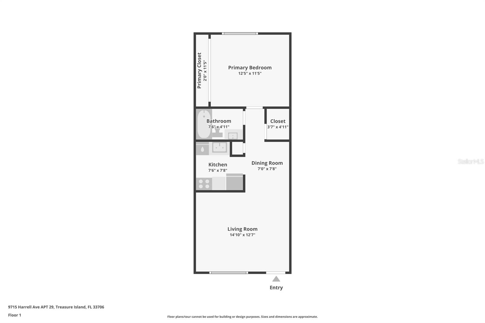
| Rooms | Rooms | |||
|---|---|---|---|---|
| Living Room: | 14x12 ft | Primary Bedroom: | 10x9 ft | |
| Kitchen: | 8x6 ft | |||