
|
Bedrooms
4
|
Bathrooms
3
|
Living Area
3,092 Sqft
|
Lot Size
9,400 Sqft
|
| Property Features | Property Features | |||
|---|---|---|---|---|
| MLS ID: | MFRTB8387915 | Year Built: | 2015 | |
| Appliances: | Built-In Oven, Convection Oven, Cooktop, Dishwasher, Disposal, Dryer, Exhaust Fan, Freezer, Gas Water Heater, Microwave, Range Hood, Refrigerator, Tankless Water Heater, Water Softener | Architectural Style: | Traditional | |
| Association Amenities: | Gated, Golf Course, Park, Playground, Pool, Recreation Facilities, Security, Tennis Court(s) | Association Fee Includes: | Guard - 24 Hour | |
| Community Features: | Association Recreation - Owned, Deed Restrictions, Gated Community - Guard, Golf Carts OK, Golf, Park, Playground, Pool, Racquetball, Restaurant, Sidewalks, Tennis Court(s), Street Lights | Construction Materials: | Block, Stone, Stucco | |
| Cooling: | Central Air | Country: | US | |
| County Or Parish: | Pinellas | Direction Faces: | North | |
| Exterior Features: | Hurricane Shutters, Rain Gutters, Sidewalk, Sliding Doors, Sprinkler Metered | Flooring: | Ceramic Tile, Tile | |
| Foundation Details: | Slab | Furnished: | Unfurnished | |
| Heating: | Central, Electric | Laundry Features: | Electric Dryer Hookup, Laundry Closet, Laundry Room, Washer Hookup | |
| Levels: | Two | Listing Agreement: | Exclusive Right To Sell | |
| Listing Terms: | Cash, Conventional, VA Loan | Lot Features: | In County, Landscaped, Near Golf Course, Near Marina, Near Public Transit, On Golf Course, Sidewalk, Paved, Private, Unincorporated | |
| Occupant Type: | Owner | Other Equipment: | Irrigation Equipment | |
| Parking Features: | Driveway, Garage Door Opener, Golf Cart Parking | Pets Allowed: | Yes | |
| Pool Features: | Child Safety Fence, In Ground, Lighting, Salt Water, Screen Enclosure | Possession: | Close Of Escrow | |
| Property Condition: | Completed | Property Sub Type: | Single Family Residence | |
| Property Type: | Residential | Road Responsibility: | Private Maintained Road | |
| Road Surface Type: | Paved | Roof: | Tile | |
| Security Features: | Security System | Sewer: | Public Sewer | |
| Showing Requirements: | Appointment Only, Listing Agent Must Accompany, ShowingTime | Spa Features: | Heated, In Ground | |
| Special Listing Conditions: | None | Standard Status: | Active | |
| State Or Province: | FL | Utilities: | BB/HS Internet Available, Cable Available, Cable Connected, Electricity Connected, Fire Hydrant, Natural Gas Connected, Phone Available, Sewer Connected, Sprinkler Recycled, Underground Utilities, Water Connected | |
| View: | Golf Course, Pool | Water Source: | Public | |
| Window Features: | Blinds, ENERGY STAR Qualified Windows, Low-Emissivity Windows, Shutters, Storm Window(s) | |||
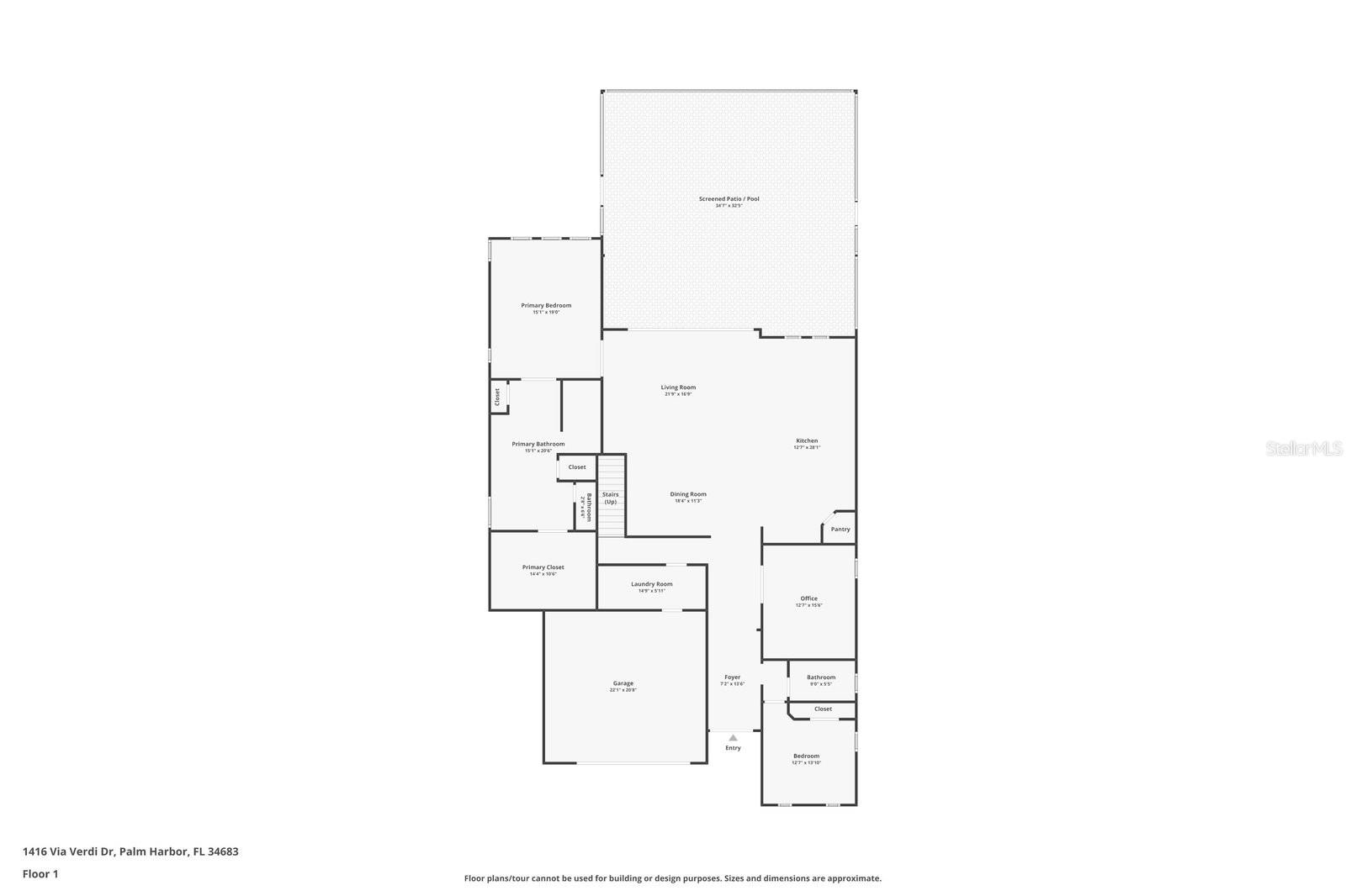
| Rooms | Rooms | |||
|---|---|---|---|---|
| Bonus Room: | 20x18 ft | Bedroom 3: | 12x10 ft | |
| Bedroom 2: | 13x11 ft | Primary Bedroom: | 19x15 ft | |
| Office: | 14x11 ft | Kitchen: | 28x13 ft | |
| Great Room: | 23x17 ft | |||