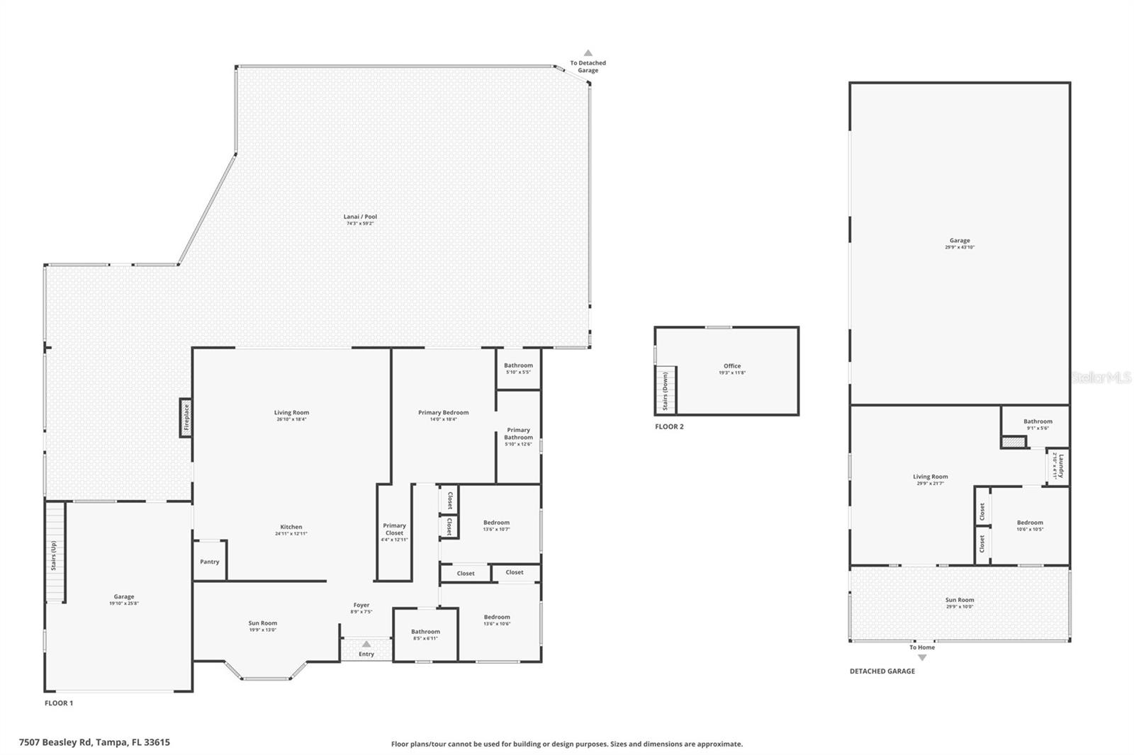
This exceptionally rare 4-bedroom, 3.5-bath estate in the heart of Tampa offers a perfect blend of luxury, privacy, and unmatched functionality. Spanning 2,897 sq ft on a .72-acre fully fenced lot, this stunning property features a remote gate, separate mother-in-law suite with a private covered porch and entrance, a spacious bonus loft, and an impressive six-car garage setup—comprising a main two-car garage and an expansive detached garage structure with four doors that accommodate up to six vehicles. Additionally, two covered carports provide ample space for RV or boat parking. The exterior boasts a durable metal roof and extensive outdoor lighting, while inside, the main home—featuring three bedrooms and two baths—is bathed in natural light and adorned with a captivating southwestern aesthetic. A high-end chef’s kitchen, complete with floor-to-ceiling cabinetry, stainless steel appliances, granite countertops, a built-in wine fridge, and an oversized island, is perfect for entertaining. A gas burning fireplace adds to the appeal. Multiple porches span the length of the residence, seamlessly blending indoor and outdoor living. Meticulously upgraded, the home includes new above-ground PVC plumbing, a 300-amp electrical service, an electric gated backyard entrance, a comprehensive Ring security system, an irrigation system, underground drainage, and a newly installed water softener and well. The outdoor oasis features landscape lighting, a refreshing pool with a built-in table, seating bench, spa, and waterfall, plus a screened enclosure with overhead lighting and ceiling fans. An outdoor shower complements the poolside bathroom, while propane-powered amenities include a fireplace, stovetop, BBQ grill, and spa. The residence also offers a versatile front room for office or entertaining needs, two-zone air conditioning, a screened patio off the family room and garage, and a lofted garage space with skylights and walk-in attic access. An attached apartment provides additional living space with a full kitchen, living room, bedroom, bath, washer/dryer, and a covered, screened patio. The property’s expansive shop garages feature roll-up doors with generous storage capacity, and the large and small backyard carports provide additional shelter for recreational vehicles. Nestled in the center of everything Tampa has to offer, this rare gem delivers a perfect combination of luxury, convenience, and practical elegance—an unparalleled opportunity for the discerning homeowner. Recent 4-point report available, make your appointment today!
Property Details
Property Features Property Features
MLS ID: MFRTB8390624 Year Built: 1966
Appliances: Dishwasher, Disposal, Dryer, Electric Water Heater, Microwave, Range, Refrigerator, Washer, Wine Refrigerator Construction Materials: Block
Cooling: Central Air Country: US
County Or Parish: Hillsborough Direction Faces: West
Exterior Features: French Doors, Lighting, Sliding Doors Fencing: Fenced
Fireplace Features: Wood Burning Flooring: Laminate, Tile
Foundation Details: Slab Heating: Central
Laundry Features: In Garage, Laundry Closet Levels: One
Listing Agreement: Exclusive Right To Sell Listing Terms: Cash, Conventional, FHA, VA Loan
Occupant Type: Owner Other Equipment: Irrigation Equipment
Parking Features: Boat, Driveway, Garage Door Opener, Oversized, RV Carport, Workshop in Garage Patio And Porch Features: Covered, Front Porch, Rear Porch, Screened, Side Porch
Pool Features: Gunite, Heated, In Ground, Lighting, Screen Enclosure Possession: Close Of Escrow
Property Sub Type: Single Family Residence Property Type: Residential
Road Surface Type: Asphalt Roof: Metal
Security Features: Smoke Detector(s) Sewer: Septic Tank
Showing Requirements: Supra Lock Box, ShowingTime Special Listing Conditions: None
Standard Status: Active State Or Province: FL
Utilities: BB/HS Internet Available, Cable Available, Electricity Connected Vegetation: Trees/Landscaped
Water Source: Public
Rooms Rooms
Kitchen: 24x12 ft Living Room: 26x18 ft
Primary Bedroom: 14x18 ft Bedroom 2: 13x10 ft
Bedroom 3: 13x10 ft
We love to hear from you