
|
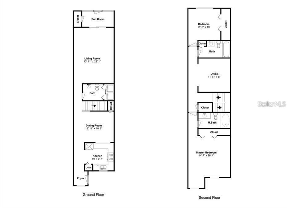
Bedrooms
2
|
Bathrooms
3
|
Living Area
1,560 Sqft
|
Lot Size
1,179 Sqft
|
| Property Features | Property Features | |||
|---|---|---|---|---|
| MLS ID: | MFRTB8392733 | Year Built: | 2005 | |
| Appliances: | Dishwasher, Microwave, Range, Refrigerator | Association Fee Includes: | Pool, Maintenance Structure, Maintenance, Recreational Facilities, Trash, Water | |
| Community Features: | Gated Community - Guard, Pool | Construction Materials: | Block, Stone, Stucco | |
| Cooling: | Central Air | Country: | US | |
| County Or Parish: | Hillsborough | Direction Faces: | South | |
| Exterior Features: | Balcony | Flooring: | Carpet, Luxury Vinyl, Tile | |
| Foundation Details: | Slab | Green Energy Efficient: | Appliances | |
| Heating: | Central | Laundry Features: | Inside | |
| Levels: | Two | Listing Agreement: | Exclusive Right To Sell | |
| Listing Terms: | Cash, Conventional, FHA, VA Loan | Occupant Type: | Owner | |
| Pets Allowed: | Yes | Pool Features: | Heated | |
| Possession: | Negotiable | Property Sub Type: | Townhouse | |
| Property Type: | Residential | Road Surface Type: | Asphalt | |
| Roof: | Shingle | Sewer: | Public Sewer | |
| Showing Requirements: | 24 Hour Notice, Appointment Only, Call Listing Agent, Gate Code Required, ShowingTime | Special Listing Conditions: | None | |
| Standard Status: | Active | State Or Province: | FL | |
| Utilities: | Cable Connected, Electricity Connected | Water Source: | Public | |
| Rooms | Rooms | |||
|---|---|---|---|---|
| Kitchen: | 12x12 ft | Living Room: | 18x22 ft | |
| Primary Bedroom: | 14x15 ft | |||