
|
Bedrooms
3
|
Bathrooms
4
|
Living Area
1,897 Sqft
|
Lot Size
980 Sqft
|
| Property Features | Property Features | |||
|---|---|---|---|---|
| MLS ID: | MFRTB8424367 | Year Built: | 2021 | |
| Appliances: | Dishwasher, Disposal, Dryer, Microwave, Range, Range Hood, Refrigerator, Washer | Association Fee Includes: | Maintenance Structure, Maintenance Grounds, Sewer, Trash, Water | |
| Community Features: | Deed Restrictions, Dog Park | Construction Materials: | Block | |
| Cooling: | Central Air | Country: | US | |
| County Or Parish: | Pinellas | Direction Faces: | South | |
| Exterior Features: | Rain Gutters, Sidewalk | Flooring: | Luxury Vinyl, Tile | |
| Foundation Details: | Slab | Furnished: | Unfurnished | |
| Heating: | Electric | Laundry Features: | Laundry Closet, Upper Level | |
| Levels: | Three Or More | Listing Agreement: | Exclusive Right To Sell | |
| Listing Terms: | Cash, Conventional, VA Loan | Occupant Type: | Vacant | |
| Pets Allowed: | Yes | Possession: | Close Of Escrow | |
| Property Sub Type: | Townhouse | Property Type: | Residential | |
| Road Responsibility: | Private Maintained Road | Road Surface Type: | Asphalt | |
| Roof: | Membrane | Sewer: | Public Sewer | |
| Showing Requirements: | ShowingTime | Special Listing Conditions: | None | |
| Standard Status: | Active | State Or Province: | FL | |
| Utilities: | Public | Vegetation: | Mature Landscaping | |
| View: | City | Water Source: | Public | |
| Window Features: | Double Pane Windows, Window Treatments | |||
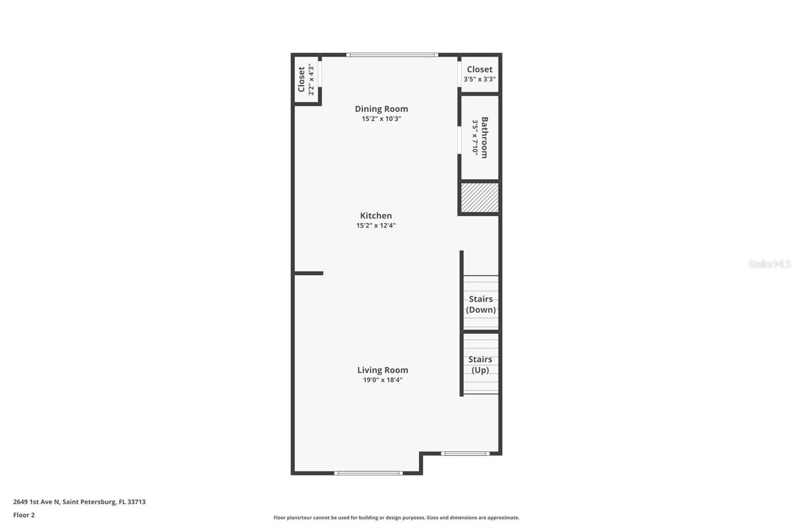
| Rooms | Rooms | |||
|---|---|---|---|---|
| Primary Bedroom: | 13.3x13.3 ft | Bedroom 2: | 11.8x12 ft | |
| Bedroom 3: | 11.5x11.3 ft | Living Room: | 19x18 ft | |
| Kitchen: | 12.4x15 ft | Dining Room: | 10x15 ft | |