
|
Living Area
1,152 Sqft
|
Lot Size
7,741 Sqft
|
| Property Features | Property Features | |||
|---|---|---|---|---|
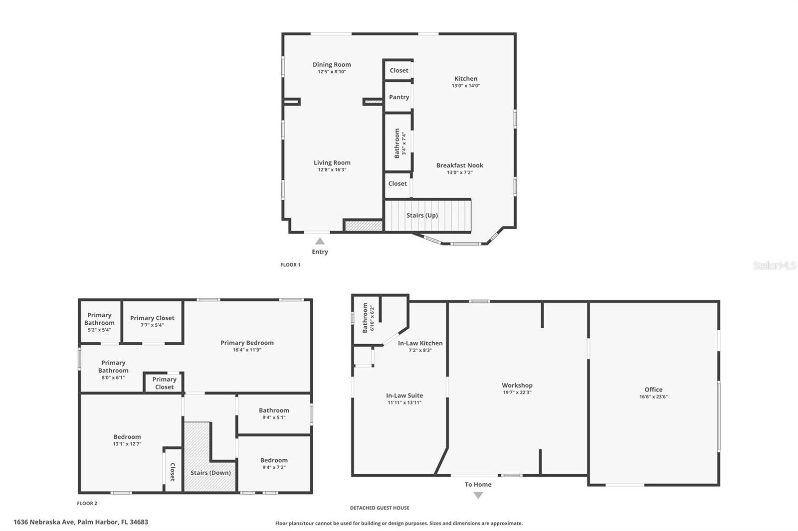
| MLS ID: | MFRTB8435819 | Year Built: | 1967 | |
| Building Features: | Bathrooms, Extra Storage, Fencing, Kitchen Facility | Construction Materials: | Block, Stucco | |
| Cooling: | Central Air | Country: | US | |
| County Or Parish: | Pinellas | Direction Faces: | North | |
| Flooring: | Carpet, Ceramic Tile, Concrete | Foundation Details: | Slab | |
| Heating: | Central | Levels: | Two | |
| Listing Agreement: | Exclusive Right To Sell | Listing Terms: | Cash, Conventional, Other | |
| Lot Features: | Corner Lot, Landscaped, Paved | Occupant Type: | Owner | |
| Other Structures: | Other | Parking Features: | Parking Spaces - 1 to 5 | |
| Property Sub Type: | Mixed Use | Property Type: | Commercial Sale | |
| Road Frontage Type: | County Road | Road Responsibility: | Public Maintained Road | |
| Road Surface Type: | Paved | Roof: | Shingle | |
| Sewer: | Public Sewer | Showing Requirements: | Supra Lock Box, Appointment Only, Lock Box Electronic-CBS Code Required, See Remarks, ShowingTime | |
| Special Listing Conditions: | None | Standard Status: | Active | |
| State Or Province: | FL | Utilities: | Electricity Available, Public | |
| Vegetation: | Trees/Landscaped | Water Source: | Public | |
| Window Features: | Blinds | |||