
|
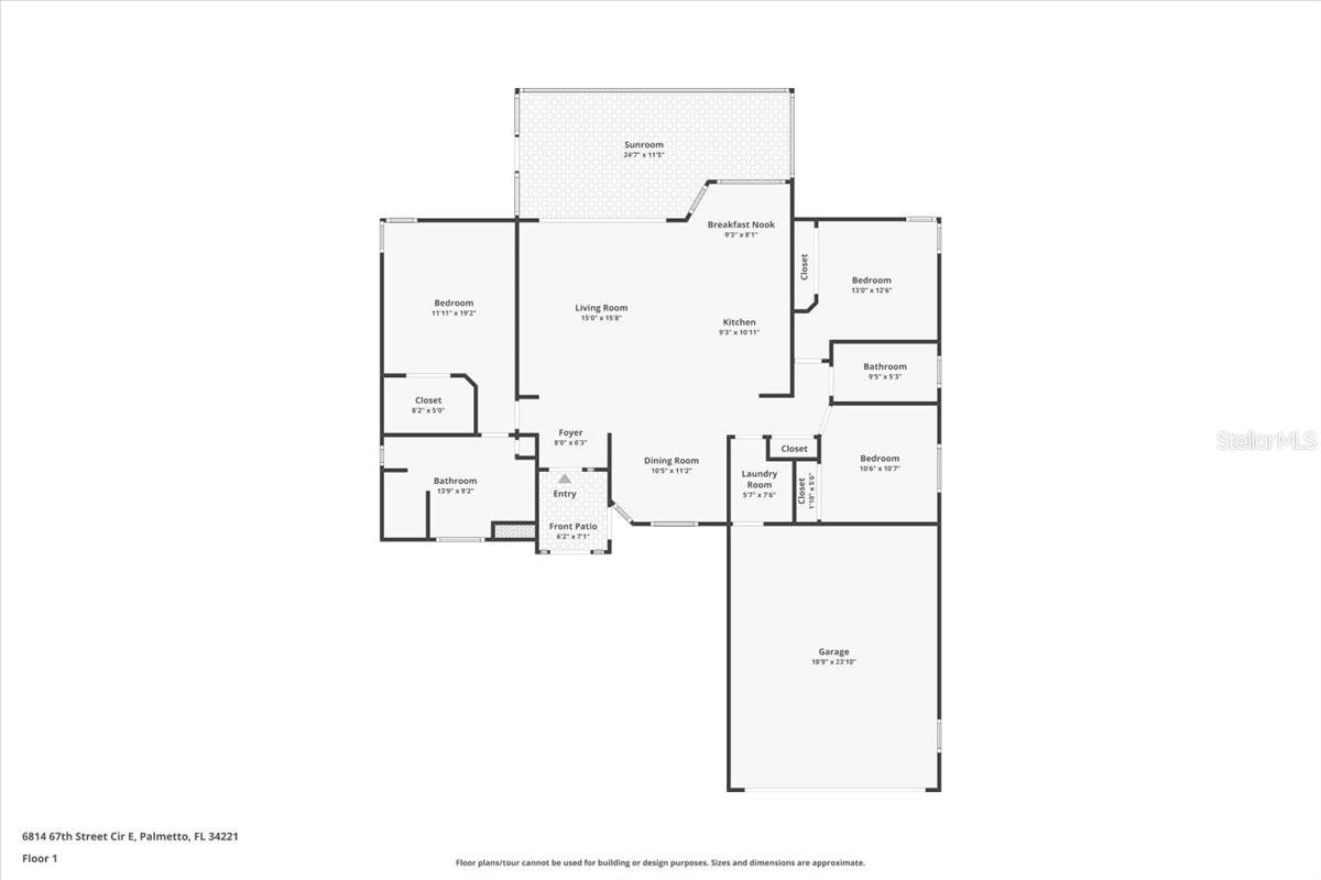
Bedrooms
3
|
Bathrooms
2
|
Living Area
1,506 Sqft
|
Lot Size
12,240 Sqft
|
| Property Features | Property Features | |||
|---|---|---|---|---|
| MLS ID: | MFRTB8436819 | Year Built: | 1994 | |
| Appliances: | Dishwasher, Disposal, Microwave, Range | Construction Materials: | Block, Stucco | |
| Cooling: | Central Air | Country: | US | |
| County Or Parish: | Manatee | Direction Faces: | South | |
| Exterior Features: | Lighting | Flooring: | Laminate | |
| Foundation Details: | Slab | Heating: | Central | |
| Laundry Features: | Laundry Room | Levels: | One | |
| Listing Agreement: | Exclusive Right To Sell | Listing Terms: | Cash, Conventional, VA Loan | |
| Occupant Type: | Vacant | Pets Allowed: | No | |
| Property Sub Type: | Single Family Residence | Property Type: | Residential | |
| Road Surface Type: | Asphalt | Roof: | Shingle | |
| Sewer: | Public Sewer | Showing Requirements: | Appointment Only | |
| Special Listing Conditions: | None | Standard Status: | Active | |
| State Or Province: | FL | Utilities: | BB/HS Internet Available, Cable Available, Cable Connected, Electricity Available, Electricity Connected | |
| Water Source: | Public | |||
| Rooms | Rooms | |||
|---|---|---|---|---|
| Living Room: | Kitchen: | |||
| Primary Bedroom: | ||||