
|
Bedrooms
1
|
Bathrooms
1
|
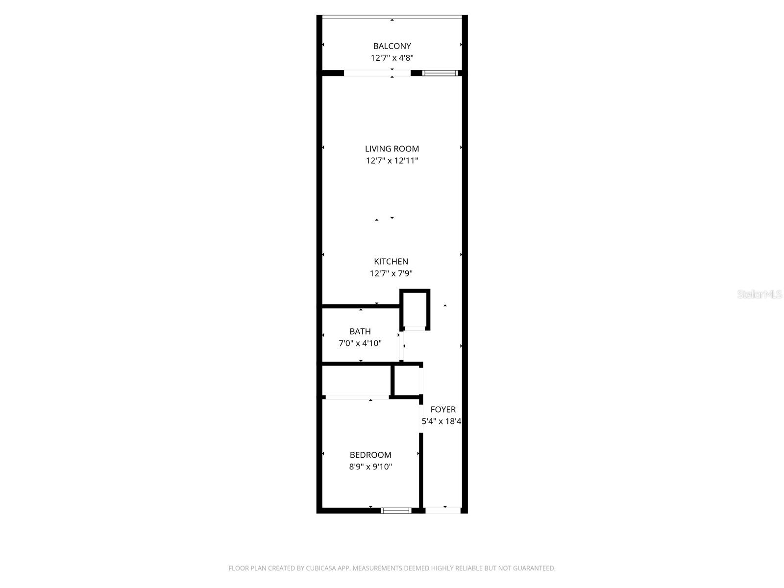
Living Area
560 Sqft
|
Lot Size
2 Sqft
|
| Property Features | Property Features | |||
|---|---|---|---|---|
| MLS ID: | MFRTB8444047 | Year Built: | 1982 | |
| Appliances: | Dishwasher, Microwave, Range, Refrigerator | Association Fee Includes: | Common Area Taxes, Pool, Insurance, Maintenance Grounds, Security | |
| Community Features: | Deed Restrictions, Fitness Center, Gated Community - Guard, Park, Pool | Construction Materials: | Block | |
| Cooling: | Central Air | Country: | US | |
| County Or Parish: | Hillsborough | Direction Faces: | East | |
| Exterior Features: | Balcony, Lighting | Flooring: | Ceramic Tile, Luxury Vinyl | |
| Foundation Details: | Block, Pillar/Post/Pier | Heating: | Electric | |
| Laundry Features: | Other | Levels: | One | |
| Listing Agreement: | Exclusive Right To Sell | Listing Terms: | Cash, Conventional | |
| Occupant Type: | Tenant | Pets Allowed: | Yes | |
| Possession: | Close Of Escrow | Property Sub Type: | Condo - Hotel | |
| Property Type: | Residential | Road Surface Type: | Asphalt | |
| Roof: | Other | Sewer: | Public Sewer | |
| Showing Requirements: | Appointment Only, ShowingTime | Special Listing Conditions: | None | |
| Standard Status: | Active | State Or Province: | FL | |
| Utilities: | BB/HS Internet Available, Cable Available, Cable Connected, Electricity Available, Electricity Connected, Sewer Available, Sewer Connected, Water Available, Water Connected | Water Source: | Public | |
| Rooms | Rooms | |||
|---|---|---|---|---|
| Primary Bedroom: | 10x9 ft | Kitchen: | 10x8 ft | |
| Living Room: | 11x12 ft | Primary Bathroom: | 5x7.5 ft | |