
|
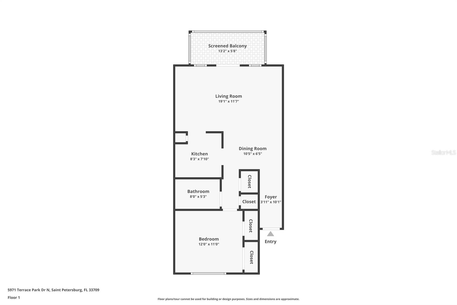
Bedrooms
1
|
Bathrooms
1
|
Living Area
660 Sqft
|
Lot Size
43,685 Sqft
|
| Property Features | Property Features | |||
|---|---|---|---|---|
| MLS ID: | MFRTB8447882 | Year Built: | 1979 | |
| Appliances: | Range, Refrigerator | Association Fee Includes: | Cable TV, Pool, Escrow Reserves Fund, Gas, Internet, Maintenance Structure, Maintenance Grounds, Sewer, Trash, Water | |
| Community Features: | Clubhouse, Deed Restrictions, Fitness Center, Pool, Sidewalks, Special Community Restrictions, Tennis Court(s) | Construction Materials: | Block, Other | |
| Cooling: | Central Air | Country: | US | |
| County Or Parish: | Pinellas | Direction Faces: | West | |
| Exterior Features: | Balcony, Other | Flooring: | Tile, Vinyl | |
| Foundation Details: | Slab | Heating: | Central | |
| Laundry Features: | Other | Levels: | One | |
| Listing Agreement: | Exclusive Right To Sell | Listing Terms: | Cash, Conventional | |
| Occupant Type: | Vacant | Pets Allowed: | Yes | |
| Property Sub Type: | Condominium | Property Type: | Residential | |
| Road Surface Type: | Asphalt | Roof: | Built-Up, Other | |
| Sewer: | Public Sewer | Showing Requirements: | Supra Lock Box, Call Listing Agent 2, See Remarks, ShowingTime | |
| Special Listing Conditions: | None | Standard Status: | Active | |
| State Or Province: | FL | Utilities: | BB/HS Internet Available, Cable Connected, Electricity Available, Natural Gas Available, Phone Available, Sewer Available, Water Available | |
| Water Source: | Public | |||
| Rooms | Rooms | |||
|---|---|---|---|---|
| Living Room: | Kitchen: | |||
| Dining Room: | Primary Bedroom: | |||
| Bathroom 1: | ||||