
|
Bedrooms
3
|
Bathrooms
3
|
Living Area
1,855 Sqft
|
Lot Size
3,350 Sqft
|
| Property Features | Property Features | |||
|---|---|---|---|---|
| MLS ID: | MFRTB8470736 | Year Built: | 2006 | |
| Appliances: | Built-In Oven, Dishwasher, Dryer, Microwave, Range, Range Hood, Refrigerator, Washer | Association Amenities: | Park, Playground | |
| Community Features: | Fitness Center, Golf Carts OK, Golf, Park, Playground, Pool, Sidewalks | Cooling: | Central Air | |
| Country: | US | County Or Parish: | Osceola | |
| Exterior Features: | Balcony, Dog Run, Lighting, Sidewalk | Flooring: | Tile | |
| Furnished: | Furnished | Heating: | Central | |
| Laundry Features: | Laundry Room | Levels: | Two | |
| Lot Features: | In County, Landscaped, Near Golf Course, Sidewalk, Paved | Occupant Type: | Owner | |
| Other Equipment: | Irrigation Equipment | Owner Pays: | Cable TV, Grounds Care | |
| Patio And Porch Features: | Front Porch | Pets Allowed: | Breed Restrictions, Dogs OK | |
| Property Sub Type: | Condominium | Property Type: | Residential Lease | |
| Road Surface Type: | Paved | Showing Requirements: | Call Listing Agent 2, See Remarks, ShowingTime | |
| Standard Status: | Active | State Or Province: | FL | |
| Utilities: | BB/HS Internet Available, Cable Available, Electricity Available, Sewer Available, Water Available | |||
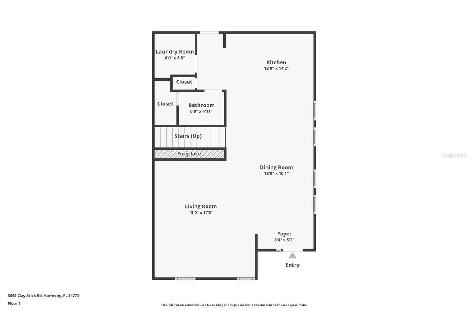
| Rooms | Rooms | |||
|---|---|---|---|---|
| Living Room: | 15x17 ft | Kitchen: | 13x14 ft | |
| Dining Room: | 13x10 ft | Laundry: | 6x6 ft | |
| Primary Bedroom: | 19x18 ft | Bedroom 2: | 10x12 ft | |
| Bedroom 3: | 9x2 ft | Primary Bathroom: | 14x9 ft | |
| Bathroom 2: | 5x10 ft | Balcony/Porch/Lanai: | 6x16 ft | |