
|
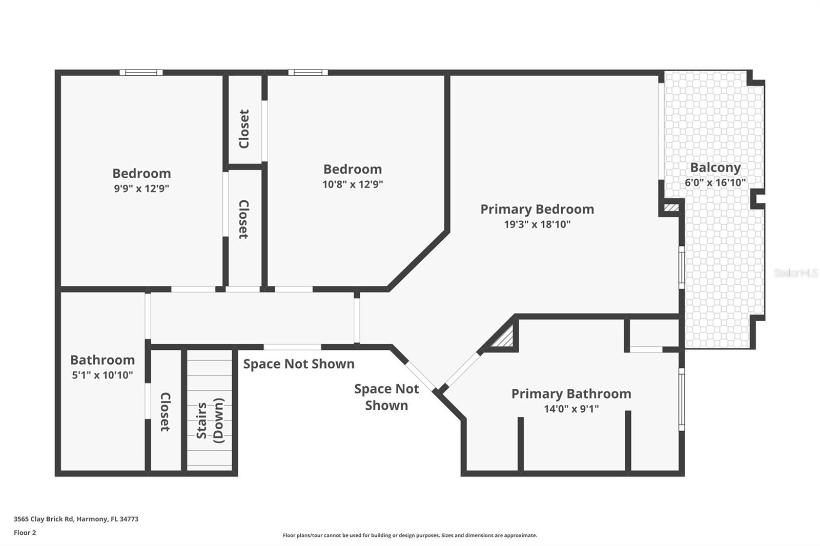
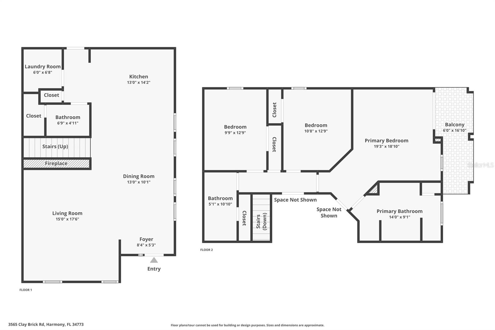
Bedrooms
3
|
Bathrooms
3
|
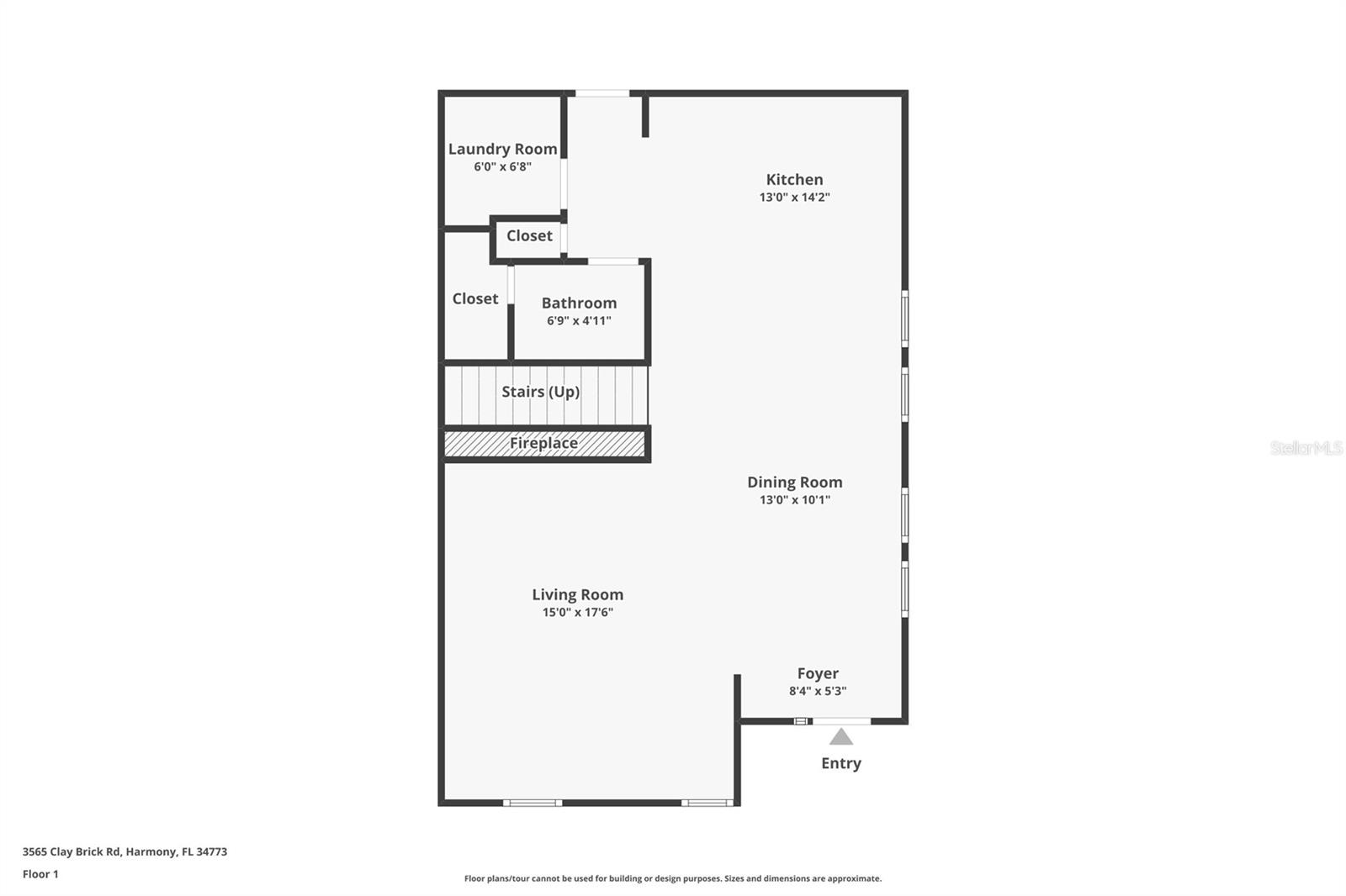
Living Area
1,855 Sqft
|
Lot Size
3,350 Sqft
|
| Property Features | Property Features | |||
|---|---|---|---|---|
| MLS ID: | MFRTB8470753 | Year Built: | 2006 | |
| Appliances: | Built-In Oven, Dishwasher, Dryer, Microwave, Range, Range Hood, Refrigerator, Washer | Association Amenities: | Park, Playground | |
| Association Fee Includes: | Cable TV, Pool, Maintenance Grounds | Community Features: | Fitness Center, Golf Carts OK, Golf, Park, Playground, Pool, Sidewalks | |
| Construction Materials: | Block, Stucco | Cooling: | Central Air | |
| Country: | US | County Or Parish: | Osceola | |
| Direction Faces: | Southwest | Exterior Features: | Balcony, Dog Run, Lighting, Sidewalk | |
| Flooring: | Tile | Foundation Details: | Slab | |
| Furnished: | Furnished | Heating: | Central | |
| Laundry Features: | Laundry Room | Levels: | Two | |
| Listing Agreement: | Exclusive Right To Sell | Listing Terms: | Cash, Conventional, FHA, VA Loan | |
| Lot Features: | In County, Landscaped, Near Golf Course, Sidewalk, Paved | Occupant Type: | Owner | |
| Other Equipment: | Irrigation Equipment | Patio And Porch Features: | Covered, Front Porch | |
| Pets Allowed: | Breed Restrictions, Dogs OK | Property Sub Type: | Condominium | |
| Property Type: | Residential | Road Surface Type: | Paved | |
| Roof: | Shingle | Sewer: | Public Sewer | |
| Showing Requirements: | 24 Hour Notice, See Remarks, ShowingTime | Special Listing Conditions: | None | |
| Standard Status: | Active | State Or Province: | FL | |
| Utilities: | BB/HS Internet Available, Cable Available, Electricity Available, Phone Available, Sewer Available, Water Available | Vegetation: | Trees/Landscaped | |
| Water Source: | Public | |||
| Rooms | Rooms | |||
|---|---|---|---|---|
| Living Room: | 15x17 ft | Kitchen: | 13x14 ft | |
| Primary Bedroom: | 19x18 ft | Laundry: | 6x6 ft | |
| Dining Room: | Bedroom 2: | 10x12 ft | ||
| Bedroom 3: | 9x2 ft | Primary Bathroom: | 14x19 ft | |
| Bathroom 2: | 5x10 ft | Balcony/Porch/Lanai: | 6x6 ft | |