
|
Bedrooms
2
|
Bathrooms
2
|
Living Area
1,796 Sqft
|
Lot Size
10,625 Sqft
|
| Property Features | Property Features | |||
|---|---|---|---|---|
| MLS ID: | MFRTB8470810 | Year Built: | 1988 | |
| Appliances: | Cooktop, Dishwasher, Disposal, Dryer, Electric Water Heater, Microwave, Range, Refrigerator, Washer, Water Softener | Architectural Style: | Ranch | |
| Association Amenities: | Basketball Court, Clubhouse, Fence Restrictions, Fitness Center, Golf Course, Handicap Modified, Optional Additional Fees, Park, Pickleball Court(s), Pool, Recreation Facilities, Security, Shuffleboard Court, Spa/Hot Tub, Tennis Court(s), Trail(s), Wheelchair Access | Association Fee Includes: | Common Area Taxes, Pool, Escrow Reserves Fund, Recreational Facilities, Security | |
| Community Features: | Association Recreation - Owned, Buyer Approval Required, Clubhouse, Community Mailbox, Fitness Center, Golf Carts OK, Golf, Handicap Modified, Park, Pool, Restaurant, Sidewalks, Special Community Restrictions, Tennis Court(s), Wheelchair Access, Street Lights | Construction Materials: | Block, Stone | |
| Cooling: | Central Air | Country: | US | |
| County Or Parish: | Hillsborough | Direction Faces: | East | |
| Exterior Features: | Hurricane Shutters, Lighting, Rain Gutters, Sidewalk, Sliding Doors | Fencing: | Vinyl | |
| Flooring: | Ceramic Tile, Hardwood | Foundation Details: | Slab | |
| Furnished: | Unfurnished | Heating: | Central, Heat Pump | |
| Laundry Features: | Inside, Laundry Room | Levels: | One | |
| Listing Agreement: | Exclusive Right To Sell | Listing Terms: | Cash, Conventional, FHA, VA Loan | |
| Lot Features: | City Limits, In County, Landscaped, Level, Sidewalk, Street Dead-End, Paved | Occupant Type: | Owner | |
| Other Equipment: | Irrigation Equipment | Parking Features: | Driveway, Garage Door Opener, Ground Level | |
| Patio And Porch Features: | Covered, Enclosed, Front Porch, Patio, Rear Porch, Screened | Pets Allowed: | Yes | |
| Pool Features: | Auto Cleaner, Deck, Diving Board, Gunite, Heated, In Ground, Lap, Outside Bath Access | Possession: | Close Of Escrow | |
| Property Sub Type: | Single Family Residence | Property Type: | Residential | |
| Road Surface Type: | Paved | Roof: | Shingle | |
| Sewer: | Public Sewer | Showing Requirements: | Lock Box Electronic, ShowingTime | |
| Special Listing Conditions: | None | Standard Status: | Active | |
| State Or Province: | FL | Utilities: | BB/HS Internet Available, Cable Connected, Electricity Connected, Fire Hydrant, Sewer Connected, Underground Utilities, Water Connected | |
| Vegetation: | Mature Landscaping | Water Source: | Public | |
| Window Features: | Window Treatments | |||
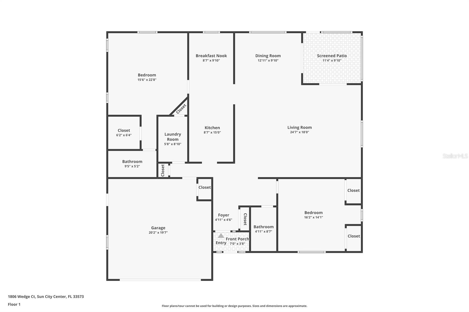
| Rooms | Rooms | |||
|---|---|---|---|---|
| Foyer: | 13x9 ft | Living Room: | 25x18 ft | |
| Dining Room: | 13x10 ft | Kitchen: | 15x10 ft | |
| Dinette: | 14x9 ft | Primary Bedroom: | 23x16 ft | |
| Primary Bathroom: | 10x5 ft | Bedroom 2: | 16x14 ft | |
| Bathroom 2: | 9x5 ft | Balcony/Porch/Lanai: | 7x4 ft | |
| Balcony/Porch/Lanai: | 11x10 ft | Balcony/Porch/Lanai: | 8x7 ft | |